Verkocht o.v.
€ 275.000,- k.k.

Binnenhof 129, Almere

74 m2 - 2 slaapkamers - bouwjaar 1979

Licht en ruim 3-kamerappartement met zonnig dakterras op het zuiden

Dit leuke en goed ingedeelde 3-kamerappartement ligt op de tweede en bovenste verdieping van een verzorgd complex in een rustige woonwijk aan de rand van het winkelcentrum van Almere-Haven. De ligging is ideaal: vlak bij de gezellige Havenboulevard met haar restaurants en terrassen aan het water, op loopafstand van scholen, openbaar vervoer en het Gooimeer. Ook het gezondheidscentrum en de uitvalswegen naar de A6 en A27 bevinden zich in de directe nabijheid.

Almere-Haven biedt een prettige mix van rust, ruimte en levendigheid. Dankzij de groene omgeving, het water en het gevarieerde aanbod aan sportieve en culturele evenementen is dit een geliefde plek om te wonen.

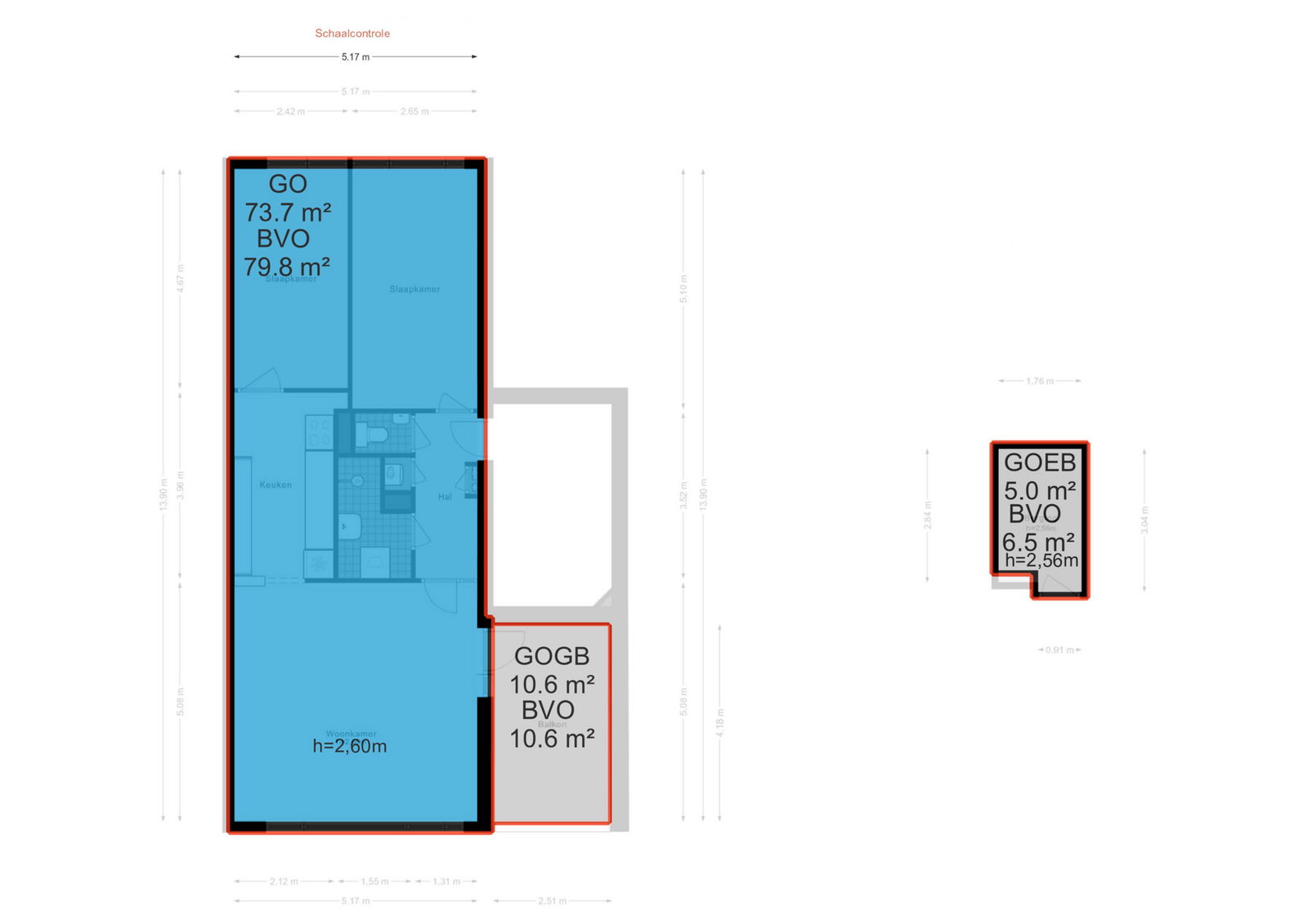
Indeling

Begane grond:
Centrale entree met elektrische schuifdeur, bellentableau, brievenbussen en toegang tot de inpandige bergingen.

Tweede verdieping:
Entree/hal met meterkast, toilet, aparte stookkast met cv-ketel en de badkamer met wastafel, douchehoek en aansluiting voor wasmachine en droger. Aan de voorzijde bevinden zich twee slaapkamers van verschillende afmetingen.

De ruime en lichte woonkamer (ca. 26 m²) heeft een grote raampartij, wat zorgt voor veel natuurlijke lichtinval, en biedt toegang tot het zonnige dakterras op het zuiden. De halfopen keuken is voorzien van een praktisch keukenblok met extra kastruimte, wat zorgt voor voldoende opbergruimte.

Wonen dicht bij het stadshart van Almere-Haven én op steenworp afstand van water en natuur? Dan is dit appartement precies wat je zoekt!

Bijzonderheden:
Ideale ligging nabij winkels, scholen, sportaccommodaties en openbaar vervoer
Twee slaapkamers
Ruim dakterras van ca. 10 m², gelegen op het zuiden
Berging op de begane grond
Servicekosten: ca. € 161,- per maand (inclusief reservering onderhoud, schoonmaak gemeenschappelijke ruimten en opstalverzekering)
“Bieden vanaf”-prijs van toepassing
Oplevering in overleg, kan snel

ENGLISH

Bright and Spacious 2-Bedroom Apartment with Sunny South-Facing Roof Terrace

This charming and well-laid-out 2-bedroom apartment is located on the second and top floor of a well-maintained complex in a quiet residential area on the edge of the Almere-Haven shopping center. The location is ideal: close to the lively Havenboulevard with its waterfront restaurants and terraces, within walking distance of schools, public transport, and the Gooimeer lake. The health center and main roads (A6 and A27) are also easily accessible.

Almere-Haven offers a pleasant balance of tranquility, space, and vibrancy. Surrounded by greenery and water, and with a wide range of sports and cultural events, it’s a highly desirable place to live.

Layout

Ground floor:
Central entrance with automatic sliding door, intercom system, mailboxes, and access to the internal storage rooms.

Second floor:
Entrance hall with meter cupboard, separate toilet, boiler room with central heating system, and bathroom with washbasin, shower, and connections for a washing machine and dryer. At the front of the apartment, you’ll find two bedrooms of different sizes.

The spacious and bright living room (approx. 26 m²) features large windows that let in plenty of natural light and provide access to the sunny south-facing roof terrace. The semi-open kitchen is equipped with a functional kitchen unit and additional cupboards offering ample storage space.

Want to live close to the heart of Almere-Haven, yet just steps away from water and nature? Then this apartment is exactly what you’re looking for!

Key features:

Ideally located near shops, schools, sports facilities, and public transport
Two bedrooms
Spacious south-facing roof terrace (approx. 10 m²)
Private storage room on the ground floor
Service costs approx. €161 per month (including maintenance reserve, cleaning of common areas, and building insurance)
“Starting price” applies
Handover by mutual agreement, quick completion possible

Algemene Informatie

Adres
Binnenhof 129
Koopprijs
€ 275.000,- k.k.
Liggingen
Aan rustige weg, In woonwijk
Woonopp.
74 m2
Inhoud
231 m3

Comfort

Dak type
Plat dak
Isolatievormen
Dubbelglas

Indeling

Kamers
3
Slaapkamers
2

Wat is mijn huis waard?

Benieuwd naar de waarde van je huis? Ontvang binnen 24 uur gratis een indicatie van de waarde.

Vraag direct aan

Plan een bezichtiging voor dit huis