VERKOCHT
€ 265.000,- k.k.

Groenhoven 831, Amsterdam

53 m2 - 1 slaapkamer - bouwjaar 1975

Geniet van rust en privacy in dit keurige 2-kamerappartement op de 5e verdieping van een goed onderhouden complex. Gelegen in een prachtige, parkachtige omgeving, biedt dit appartement een schitterend uitzicht over het omliggende groen. Winkels, openbaar vervoer en uitvalswegen (A9, A10) zijn allemaal dichtbij, waardoor het een ideale locatie is.

Complex en Omgeving
Wonen in de Groenhoven betekent genieten van een goed onderhouden complex met een afgesloten entree, intercominstallatie en lift. Het winkelcentrum Ganzenhoef ligt om de hoek, met een breed scala aan winkels zoals Albert Heijn, Kruidvat, een apotheek, eetgelegenheden en diverse kleinere winkels. Met meerdere buslijnen en Metro 53 bereik je gemakkelijk elke hoek van de stad. Voor ontspanning zijn het Joop van Stigt Park, het Bijlmerpark en de Gaasperplas dichtbij. Bovendien is dit complex een gemeentelijk monument, wat bijdraagt aan de unieke charme en historische waarde van de omgeving.

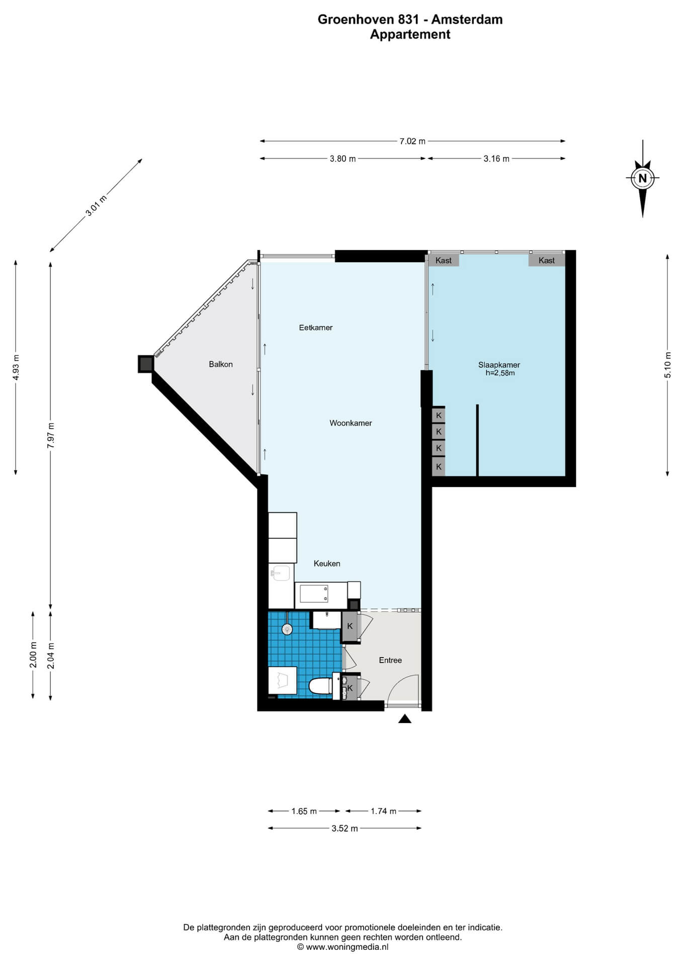
Indeling
Bij binnenkomst via de entree en hal vind je de meterkast. De badkamer is uitgerust met een douche, wastafel, toilet en wasmachineaansluiting. De open keuken biedt voldoende kastruimte en heeft diverse inbouwapparatuur zoals koelvriescombinatie, afwasmachine, oven en inductie kookplaat .De ruime woonkamer heeft via een schuifpui toegang tot het balkon. Het appartement beschikt over een ruime lichte slaapkamer welke voldoende ruimte heeft voor een tweepersoonsbed, kledingkast en bureau.

Erfpacht
De erfpachtcanon per jaar bedraagt € 214,64 tot 1 april 2026, na deze periode zal de canon € 76,13 per jaar bedragen (AB2016, jaarlijkse indexering, prijspeil 2025)

Kenmerken
Ruim en licht appartement
Lift aanwezig
PVC-vloer
Gemeenschappelijke berging op de begane grond
Huismeester aanwezig
Servicekosten: circa € 154,- per maand (exclusief circa € 135,- voorschot stookkosten)
Blokverwarming en centrale warmwatervoorziening
Gemeentelijk monument
De oplevering is in overleg

ENGLISH

Enjoy peace and privacy in this well-maintained 1-bedroom apartment on the 5th floor of a well-kept complex.
Located in a beautiful, park-like setting, this apartment offers stunning views of the surrounding greenery. Shops, public transport, and major highways (A9, A10) are all nearby, making this an ideal and convenient location.

Complex and Surroundings
Living in Groenhoven means enjoying a well-maintained complex with a secured entrance, intercom system, and elevator. Shopping center Ganzenhoef is just around the corner, offering a wide range of stores such as Albert Heijn, Kruidvat, a pharmacy, eateries, and various small shops. Several bus lines and Metro 53 provide easy access to all parts of the city. For relaxation, Joop van Stigt Park, Bijlmerpark, and Gaasperplas are all close by. Additionally, the complex is a municipal monument, contributing to its unique charm and historical value.

Layout
Upon entering the apartment through the hallway, you’ll find the meter cupboard. The bathroom is equipped with a shower, sink, toilet, and washing machine connection. The open kitchen offers ample cabinet space and built-in appliances, including a fridge-freezer, dishwasher, oven, and induction cooktop. The spacious living room provides access to the balcony through sliding doors. The bright and roomy bedroom comfortably accommodates a double bed, wardrobe, and desk.

Ground Lease
The annual ground lease payment is €214.64 until April 1, 2026. After this period, the lease will be €76.13 per year (General Provisions 2016, indexed annually, based on 2025 rates).

Features

Bright and spacious apartment
Elevator available
PVC flooring
Communal storage room on the ground floor
On-site caretaker
Service charges: approx. €154 per month (excluding approx. €135 advance payment for heating)
Block heating and central hot water supply
Municipal monument
Delivery in consultation

Bijzonderheden

  • Monument

Algemene Informatie

Adres
Groenhoven 831
Koopprijs
€ 265.000,- k.k.
Liggingen
Aan park, Aan rustige weg, In woonwijk, Vrij uitzicht
Woonopp.
53 m2
Inhoud
170 m3

Comfort

Dak type
Plat dak

Indeling

Kamers
2
Slaapkamers
1

Wat is mijn huis waard?

Benieuwd naar de waarde van je huis? Ontvang binnen 24 uur gratis een indicatie van de waarde.

Vraag direct aan

Plan een bezichtiging voor dit huis