Verkocht o.v.
€ 685.000,- k.k.

Honselersdijkstraat 18-1, Amsterdam

96 m2 - 3 slaapkamers

Comfortabel stadswonen binnen de ring van Amsterdam in deze ruime 5-kamer maisonnette, gelegen aan de Honselersdijkstraat 18-1.

Met een woonoppervlakte van 96 vierkante meter, een privétuin, twee balkons, drie slaapkamers, een inloopkast en een moderne afwerking is dit een ideaal familiehuis in de stad. De gehele woning is voorzien van vloerverwarming. Door het balkon aan de voorzijde (oosten) en het balkon en de tuin aan de achterzijde (westen) geniet u de hele dag van zowel ochtend- als middagzon. Deze goed onderhouden woning met twee woonlagen combineert ruimte, licht en rust op een uitstekende locatie in Amsterdam Nieuw-West.

LIGGING

Deze fraaie maisonnette bevindt zich in de geliefde Westlandgrachtbuurt, onderdeel van stadsdeel Nieuw-West, binnen de ring van Amsterdam. Binnen enkele minuten fietsen bereikt u het Hoofddorpplein en de gezellige Zeilstraat, waar een breed aanbod van winkels, cafés en restaurants te vinden is. Voor dagelijkse boodschappen kunt u terecht bij de Albert Heijn en Lidl op het Delflandplein, op slechts enkele minuten lopen.

Recreatie vindt u volop in de nabije omgeving: het Vondelpark ligt op slechts 10 minuten fietsen, en ook het Amsterdamse Bos en het Nieuwe Meer zijn eenvoudig bereikbaar. Qua bereikbaarheid zit u hier uitstekend. Met de auto bent u binnen enkele minuten op de A10, A4 of A9, en op slechts 10 minuten van Schiphol. Voor openbaar vervoer zijn er meerdere mogelijkheden: tram 2, metrohalte Henk Sneevlietweg en NS-stations Amsterdam Lelylaan en Zuid liggen allemaal in de buurt.

INDELING

Via de gezamenlijke entree op de bel-etage bereikt u de woning op de eerste verdieping. U komt binnen in een ruime hal met toegang tot alle vertrekken op deze woonlaag.

Aan de achterzijde bevindt zich de royale, lichte woonkamer met uitzicht op de groene binnentuin. Vanuit hier heeft u toegang tot een balkon op het westen, waar u heerlijk kunt ontspannen in de middag- en avondzon.

De moderne keuken aan de voorzijde is voorzien van diverse inbouwapparatuur, waaronder een 5-pits gasfornuis, oven, afzuigkap, koel-/vriescombinatie en vaatwasser. Aangrenzend ligt het tweede balkon op het oosten, ideaal voor de ochtendzon. Op deze verdieping vindt u daarnaast een slaapkamer aan de achterzijde met toegang tot het balkon, evenals een moderne badkamer met inloopdouche, wastafelmeubel, vloerverwarming en een separaat toilet.

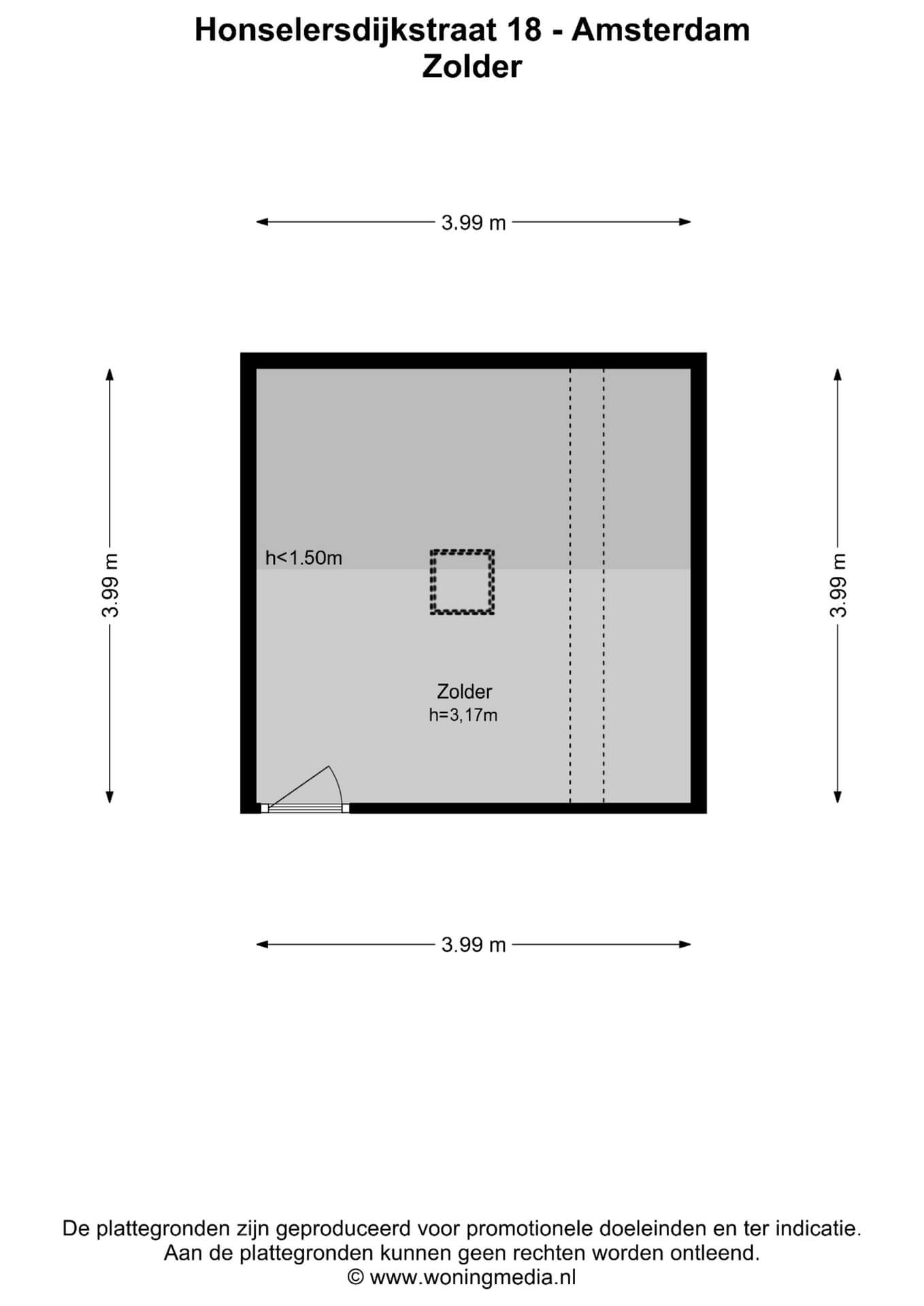
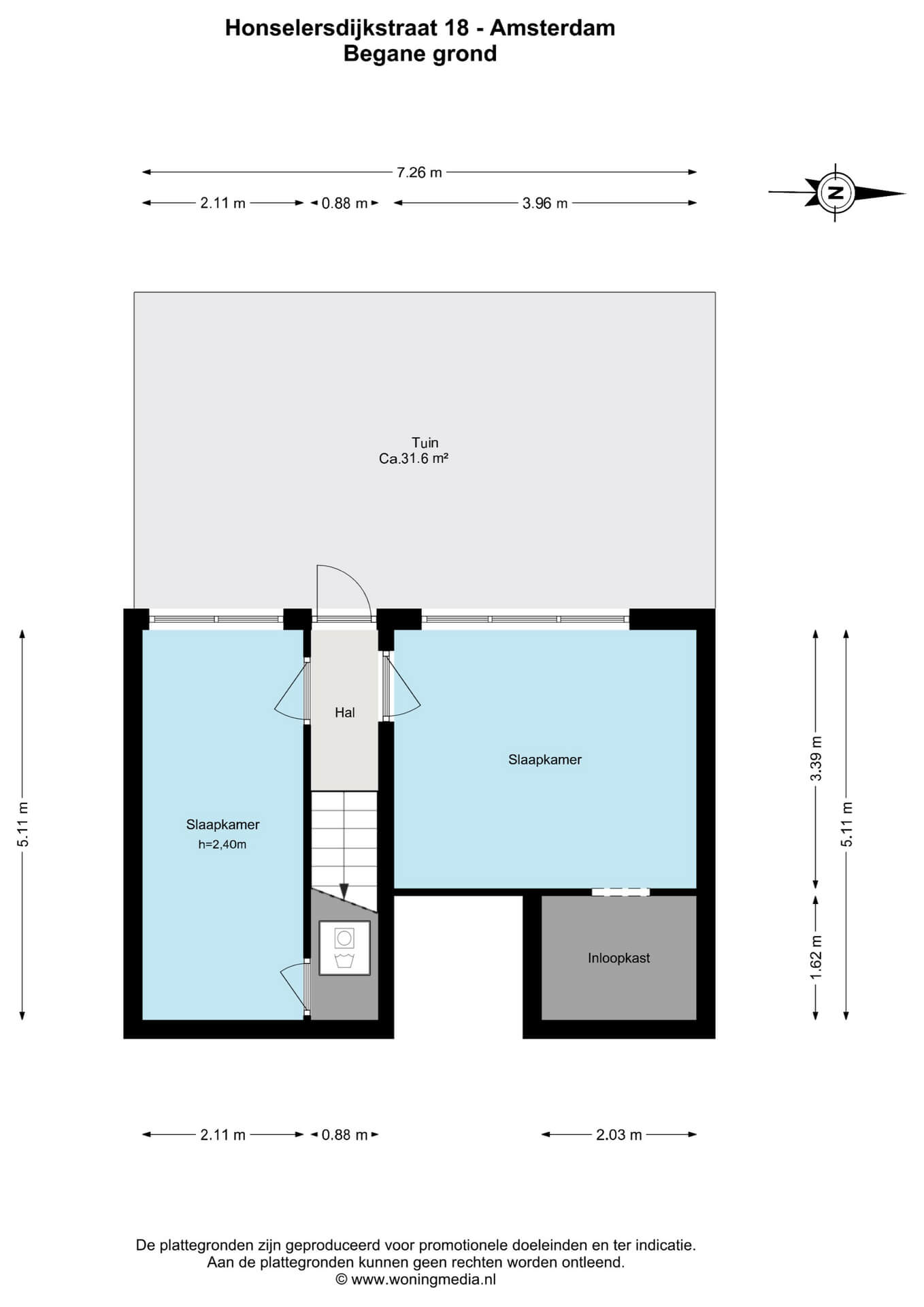
Via de interne trap in de hal bereikt u de begane grondverdieping. Hier bevinden zich nog twee slaapkamers en een praktische inloopkast. Vanuit deze verdieping heeft u directe toegang tot de zonnige privé tuin op het westen (ca. 32 m²), die grenst aan een verzorgde, gedeelde binnentuin.

BERGINGEN

Bij de woning horen twee bergingen. Eén op de begane grond, ideaal voor fietsen, te bereiken via een aparte ingang buitenom. Een tweede op de bovenste verdieping van het complex, bereikbaar via het gemeenschappelijke trappenhuis.

Dit maisonnette appartement biedt een unieke combinatie van ruimte, buitenleven en centrale ligging in Amsterdam. De slimme indeling, drie slaapkamers, zonnige tuin en prettige sfeer maken dit een ideaal thuis voor gezinnen of iedereen die nét wat meer ruimte zoekt.

BIJZONDERHEDEN

Woonoppervlakte: 96 m²
Twee woonlagen
Tuin (westen) grenzend aan het binnenterrein
2 balkons, 1 op het westen en 1 op het oosten
5 kamers, waarvan 3 slaapkamers en 1 inloopkast
Nette keuken en badkamer met vloerverwarming
Separaat toilet
Parkeren: twee parkeervergunningen mogelijk per huishouden in dit gebied
Erfpacht is eeuwigdurend afgekocht
Bouwjaar: 1962
Servicekosten: € 409,- per maand
Actieve en gezonde VvE; de VvE streeft naar verduurzaming in de komende jaren
Energielabel: C
Oplevering: in overleg

Neem vandaag nog contact met ons op voor een bezichtiging, deze woning moet u gezien hebben!

ENGLISH

Comfortable City Living Within the Amsterdam Ring in This Spacious 5-Room Maisonette Located at Honselersdijkstraat 18-1

With a living area of 96 square meters, a private garden, two balconies, three bedrooms, a walk-in closet, and modern finishes, this is an ideal family home in the city. The entire property features underfloor heating. Thanks to the balcony at the front (east-facing) and the balcony and garden at the rear (west-facing), you can enjoy both morning and afternoon sun throughout the day. This well-maintained, two-level home combines space, light, and tranquility in an excellent location in Amsterdam Nieuw-West.

LOCATION

This attractive maisonette is located in the popular Westlandgracht neighborhood, part of the Nieuw-West district, within the Amsterdam ring road. A short bike ride takes you to Hoofddorpplein and the lively Zeilstraat, offering a wide range of shops, cafés, and restaurants. For daily groceries, Albert Heijn and Lidl at Delflandplein are just a few minutes’ walk away.

There is plenty of recreation nearby: Vondelpark is only 10 minutes away by bike, and both the Amsterdamse Bos and Nieuwe Meer are easily accessible. The property also boasts excellent transport connections. By car, you can quickly access the A10, A4, or A9 motorways, and Schiphol Airport is just 10 minutes away. Public transport options include tram 2, the Henk Sneevlietweg metro station, and the nearby Amsterdam Lelylaan and Zuid railway stations.

LAYOUT

Through the shared entrance at the elevated ground floor, you reach the apartment on the first floor. You enter a spacious hallway that provides access to all rooms on this level.

At the rear is the generous, light-filled living room overlooking the green inner courtyard. From here, you have access to a west-facing balcony, perfect for enjoying the afternoon and evening sun.

The modern kitchen at the front is equipped with various built-in appliances, including a 5-burner gas stove, oven, extractor hood, fridge-freezer combination, and dishwasher. Adjacent to the kitchen is a second balcony, facing east — ideal for morning sunshine. This floor also features a bedroom at the rear with access to the balcony, as well as a modern bathroom with a walk-in shower, vanity unit, underfloor heating, and a separate toilet.

An internal staircase in the hallway leads to the ground floor level. Here, you’ll find two more bedrooms and a practical walk-in closet. From this floor, there is direct access to the sunny, west-facing private garden (approx. 32 m²), which borders a well-maintained, shared courtyard.

STORAGE

The property includes two storage units. One is on the ground floor — ideal for storing bicycles — and is accessible via a separate external entrance. The second storage unit is located on the top floor of the complex and is accessible via the communal stairwell.

This maisonette apartment offers a unique combination of space, outdoor living, and a central location in Amsterdam. Its smart layout, three bedrooms, sunny garden, and pleasant atmosphere make it an ideal home for families or anyone looking for just a bit more space.

DETAILS

Living area: 96 m²
Two residential levels
West-facing garden adjacent to inner courtyard
Two balconies: one facing west, one east
5 rooms: 3 bedrooms and 1 walk-in closet
Well-maintained kitchen and bathroom with underfloor heating
Separate toilet
Parking: two parking permits per household possible in this area
Leasehold bought off in perpetuity
Year of construction: 1962
Service charges: €409 per month
Active and healthy Homeowners’ Association (VvE); sustainability improvements planned in the coming years
Energy label: C
Delivery: in consultation

Contact us today for a viewing, this property is a must-see!

Algemene Informatie

Adres
Honselersdijkstraat 18-1
Koopprijs
€ 685.000,- k.k.
Liggingen
Aan rustige weg, In woonwijk, In bosrijke omgeving
Woonopp.
96 m2
Inhoud
326 m3
Perceel oppervlakte
96 m2

Comfort

Dak type
Zadeldak
Isolatievormen
Volledig geïsoleerd

Stedenbouwkundige info

Perceel oppervlakte
96 m2

Indeling

Kamers
4
Slaapkamers
3

Wat is mijn huis waard?

Benieuwd naar de waarde van je huis? Ontvang binnen 24 uur gratis een indicatie van de waarde.

Vraag direct aan

Plan een bezichtiging voor dit huis