VERKOCHT
€ 355.000,- k.k.

Renswoudestraat 22, Amsterdam

84 m2 - 2 slaapkamers - bouwjaar 1991

Instapklaar, perfect onderhouden en licht 3-kamerappartement met riant balkon en lift op loopafstand van winkels en metro.

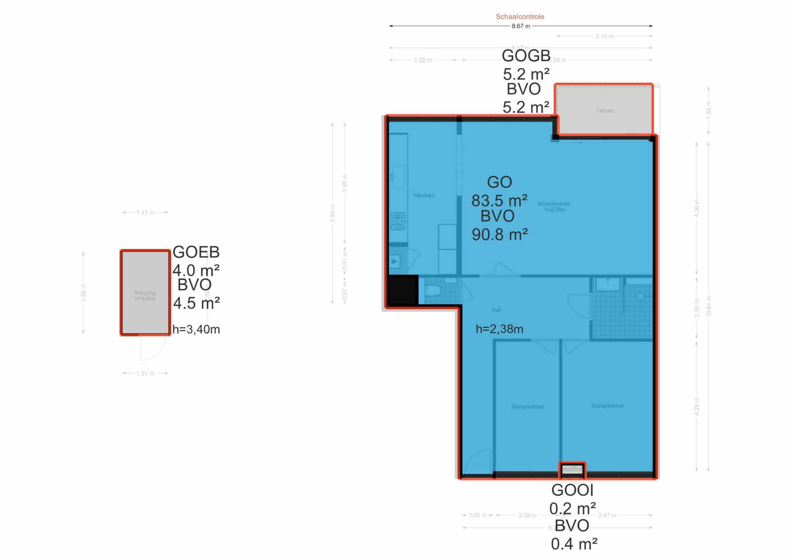
Dit goed ingedeelde appartement van circa 84 m² beschikt over twee slaapkamers, een luxe halfopen keuken, een ruim balkon op het westen en een eigen berging. De woning is modern afgewerkt, energiezuinig (energielabel A) en gelegen in een kleinschalig en verzorgd complex. De erfpacht is bovendien eeuwigdurend afgekocht.

Indeling
De afgesloten entree van het complex biedt toegang tot het trappenhuis, de lift en de bergingen. Via de galerij met uitzicht op onder andere winkels, een kerkje en de markt op woensdag bereikt u de voordeur van de woning.

De ruime hal biedt toegang tot vrijwel alle vertrekken: de woonkamer, twee slaapkamers, de badkamer en het separate toilet. Alle ruimtes zijn strak afgewerkt met hoge plinten, glad gestuukte wanden en plafonds. De twee slaapkamers liggen aan de voorzijde van de woning. De lichte en brede woonkamer is aan de achterzijde gelegen en voorzien van grote raampartijen over de gehele breedte, wat zorgt voor een prettige lichtinval. De schuifpui (voorzien van horren) geeft toegang tot het zonnige balkon op het westen, afgewerkt met houten vlonders.

Zowel aan de voor- als achterzijde zijn automatische zonneschermen en rolluiken aanwezig, onafhankelijk van elkaar te bedienen. De achterzijde is voorzien van kunststof kozijnen met dubbel glas en een geïntegreerd ventilatiesysteem. De moderne halfopen keuken is hoogglans wit en voorzien van diverse inbouwapparatuur, waaronder een dubbeldeurs koel-vriescombinatie, vaatwasser en een wasmachine/droogcombinatie.

De recent vernieuwde badkamer is luxe uitgevoerd en voorzien van een inloopdouche met regendouche, moderne wastafel met dubbele spiegelkast, inbouwspots, vloerverwarming, een separate ventilatiebediening, waterbestendige designradiator én geïntegreerde plafondspeakers. Het separate toilet is eveneens vernieuwd en uitgerust met een fonteintje met opbergkast, soft-close toilet en inbouwverlichting.

Parkeren
Ruime parkeergelegenheid: parkeren kan op de parkeerplaats of in de nabijgelegen garage achter de Vomar.

Omgeving
De ligging is uitstekend. Het recreatiegebied Gaasperplas ligt op loopafstand en biedt volop ontspanningsmogelijkheden zoals wandelen, fietsen, zwemmen, kanoën of picknicken. De woning ligt gunstig ten opzichte van openbaar vervoer, winkels, scholen en uitvalswegen (A2, A9, A1 en A10). Metrostation Gaasperplas is op loopafstand; met slechts twee haltes bent u bij de Johan Cruijff ArenA, Ziggo Dome, Pathé Arena en AFAS Live.

Kenmerken

Bouwjaar 1991
Gelegen op de 2e verdieping
Balkon gelegen op het westen
Berging circa 4 m² met hoog plafond
Actieve en financieel gezonde VvE
Servicekosten: € 199,60 per maand
Erfpacht eeuwigdurend afgekocht!
Energielabel A
Eigen zonnepanelen (4 stuks) per appartement geplaatst door de VVE
Lift aanwezig
Centrale verwarming (CV ketel uit 2011)
Oplevering in overleg, kan op korte termijn

Algemene Informatie

Adres
Renswoudestraat 22
Koopprijs
€ 355.000,- k.k.
Liggingen
In centrum, In woonwijk, Vrij uitzicht
Woonopp.
84 m2
Inhoud
244 m3

Comfort

Dak type
Plat dak
Isolatievormen
Volledig geïsoleerd

Indeling

Kamers
3
Slaapkamers
2

Wat is mijn huis waard?

Benieuwd naar de waarde van je huis? Ontvang binnen 24 uur gratis een indicatie van de waarde.

Vraag direct aan

Plan een bezichtiging voor dit huis