ONDER_BOD
€ 400.000,- k.k.

Spanderswoudstraat 146, Amsterdam

88 m2 - 3 slaapkamers - bouwjaar 1968

Licht 4-kamerappartement met ruim balkon – Amsterdam-Noord

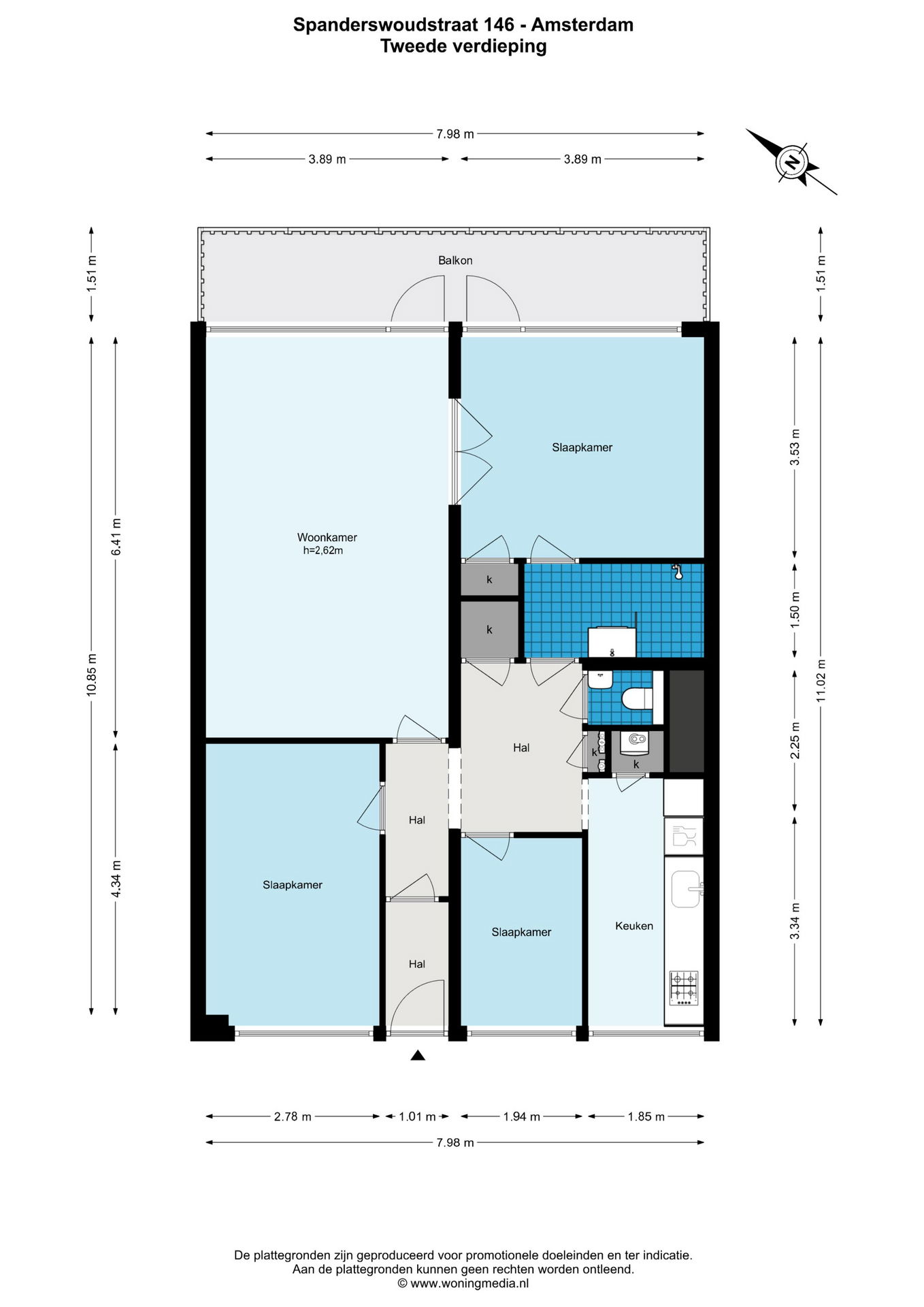
Op een fijne, rustige plek in Amsterdam-Noord, met het Winkelcentrum Waterlandplein en het Schellingwouderbreekpark om de hoek, vind je dit vierkamerappartement van circa 88 m². Het appartement ligt op de tweede verdieping van een verzorgd complex met lift, en beschikt over een breed balkon van ruim 7,5 meter met uitzicht op de groene IJdoornlaan.

Slaapkamers & sanitair
Het appartement telt drie ruime slaapkamers, waarvan één met toegang tot het balkon. De badkamer is fris en praktisch ingedeeld met een ruime douche, een wastafelmeubel en een handdoekenradiator. Naast de badkamer bevindt zich een apart toilet met fonteintje.

Buitenleven
Het Oostelijk gelegen balkon loopt over de volle breedte van de woning en biedt de perfecte plek om buiten te zitten – ’s ochtends met een kop koffie in de zon, en later op de dag juist een fijne schaduwplek.

Ligging
De locatie combineert rust met gemak: in een paar minuten loop je naar Winkelcentrum Waterlandplein, met twee supermarkten en diverse winkels. Het Schellingwouderbreekpark ligt op steenworp afstand voor een wandeling, hardlooprondje of picknick aan het water. De bus op de IJdoornlaan brengt je rechtstreeks naar Station Noord, Amstelstation of zelfs Schiphol Airport.
Ook scholen, kinderopvang en de sfeervolle dorpjes van Landelijk Noord (Ransdorp, Zunderdorp, Holysloot) zijn makkelijk bereikbaar.

Parkeren
Het appartement ligt in vergunninggebied Noord-11d. Er is geen wachtlijst voor een vergunning.
1e vergunning: € 38,60 per 6 maanden
2e vergunning: € 96,49 per 6 maanden

Bijzonderheden
Woonoppervlakte circa 89 m²
Erfpacht tot 15-12-2052
Kunststof kozijnen met dubbel glas
CV ketel voor verwarming en warm water
Drie ruime slaapkamers
Balkon van ca. 7,5 meter breed op het zuidwesten
VvE-bijdrage: € 158,51 per maand
Energielabel A
Inclusief (fiets)berging op de begane grond

Algemene Informatie

Adres
Spanderswoudstraat 146
Koopprijs
€ 400.000,- k.k.
Liggingen
In woonwijk, Vrij uitzicht
Woonopp.
88 m2
Inhoud
277 m3

Comfort

Dak type
Plat dak
Isolatievormen
Dubbelglas

Indeling

Kamers
4
Slaapkamers
3

Wat is mijn huis waard?

Benieuwd naar de waarde van je huis? Ontvang binnen 24 uur gratis een indicatie van de waarde.

Vraag direct aan

Plan een bezichtiging voor dit huis