VERKOCHT
€ 225.000,- k.k.

Van 't Hoffplein 13A 2, Schiedam

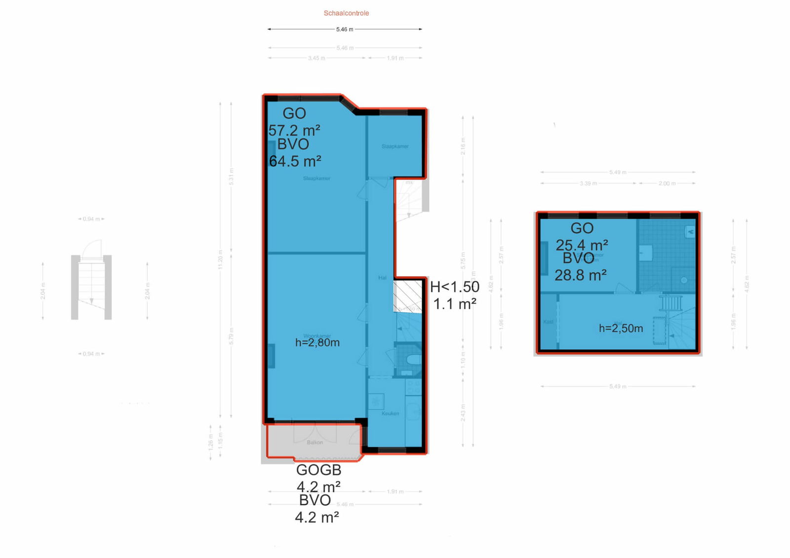
83 m2 - 3 slaapkamers - bouwjaar 1934

Charmant dubbel bovenhuis met zonnig balkon én potentieel dakterras.

Op een centrale locatie nabij het gezellige centrum van Schiedam én uitstekend bereikbaar met het openbaar vervoer, ligt dit karaktervolle dubbele bovenhuis uit 1934. Met een eigen entree, drie slaapkamers, een balkon op het zuiden én de mogelijkheid tot het aanleggen van een dakterras, biedt deze woning verrassend veel ruimte en potentieel!

Indeling:
Via de entree op de begane grond betreed je de woning op de eerste verdieping. Daar ga je met je eigen trap naar de tweede verdieping. Hier bevindt zich een lichte woonkamer met een dichte keuken. Vanuit de woonkamer heb je toegang tot het zonnige balkon op het zuiden – ideaal voor een kop koffie in de ochtend of een borrel in de avondzon.

Op deze verdieping bevinden zich nog twee slaapkamers en een separaat toilet. De ruime hal geeft toegang tot de trap naar de derde verdieping, waar een derde slaapkamer én een badkamer met douche en wastafel te vinden zijn.

De bovenste etage biedt bovendien directe toegang tot het dak. Diverse buren hebben hier al een dakterras gerealiseerd – een uitstekende kans om jouw eigen buitenruimte te creëren met uitzicht over de stad!

Bijzonderheden:

* Dubbel bovenhuis met eigen opgang vanaf de eerste verdieping
* 3 slaapkamers
* Balkon op het zuiden
* Mogelijkheid tot aanleggen van een dakterras
* Badkamer en apart toilet
* CV-ketel uit 2021
* Bouwjaar 1934
* Energielabel C
* Gelegen nabij Schiedam centrum en openbaar vervoer
* 2021: gehele dak vernieuwd
* 2023: alle kozijnen aan achterzijde gedaan
* 2025: kozijnen 3e verdieping voorzijde gedaan
* 2025: trappenhuis gerenoveerd

Kortom: een charmante en ruime woning met veel potentie, gelegen op een toplocatie. Ben je op zoek naar een karaktervol huis dat je nog helemaal eigen kunt maken? Dan is dit je kans!

Algemene Informatie

Adres
Van 't Hoffplein 13A 2
Koopprijs
€ 225.000,- k.k.
Liggingen
In woonwijk, In woonwijk, Vrij uitzicht, Vrij uitzicht
Woonopp.
83 m2
Inhoud
283 m3

Comfort

Dak type
Plat dak
Isolatievormen
Grotendeels dubbelglas, Grotendeels dubbelglas

Indeling

Kamers
4
Slaapkamers
3

Wat is mijn huis waard?

Benieuwd naar de waarde van je huis? Ontvang binnen 24 uur gratis een indicatie van de waarde.

Vraag direct aan

Plan een bezichtiging voor dit huis