Verkocht o.v.
€ 395.000,- k.k.

Bijlmerdreef 1200, Amsterdam

107 m2 - 2 slaapkamers - bouwjaar 2002

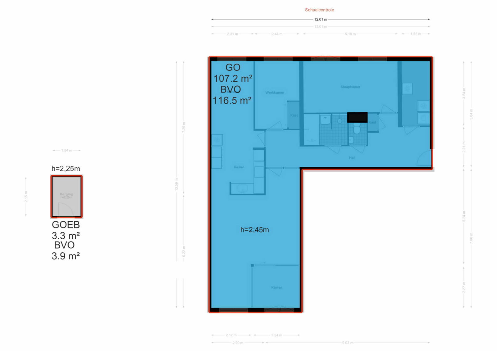
Goed onderhouden en ruim 3-kamerappartement (voorheen 4 kamers) van ca. 107 m², gelegen op de 2e verdieping van een modern appartementencomplex met lift. De woning beschikt over een berging op de begane grond.

Voor de dagelijkse boodschappen is het ondergelegen winkelcentrum Ganzenpoort ideaal. Met een breed aanbod aan winkels en speciaalzaken, én een wekelijkse versmarkt op zaterdag, is alles binnen handbereik. Daarnaast ligt het complex in een rustige en groene omgeving, met metrostation Ganzenhoef, sportfaciliteiten, scholen, recreatievoorzieningen en openbaar vervoer allemaal in de directe nabijheid.

De ligging nabij de Gooiseweg biedt uitstekende verbindingen met de A10 (Ring Amsterdam), A9 en A2. Amsterdam Zuidoost beschikt bovendien over diverse maatschappelijke voorzieningen, waaronder het AMC, middelbare scholen en hogescholen. De groene omgeving komt tot uiting in de nabijheid van de Gaasperplas en het Bijlmerpark – perfecte plekken voor ontspanning.

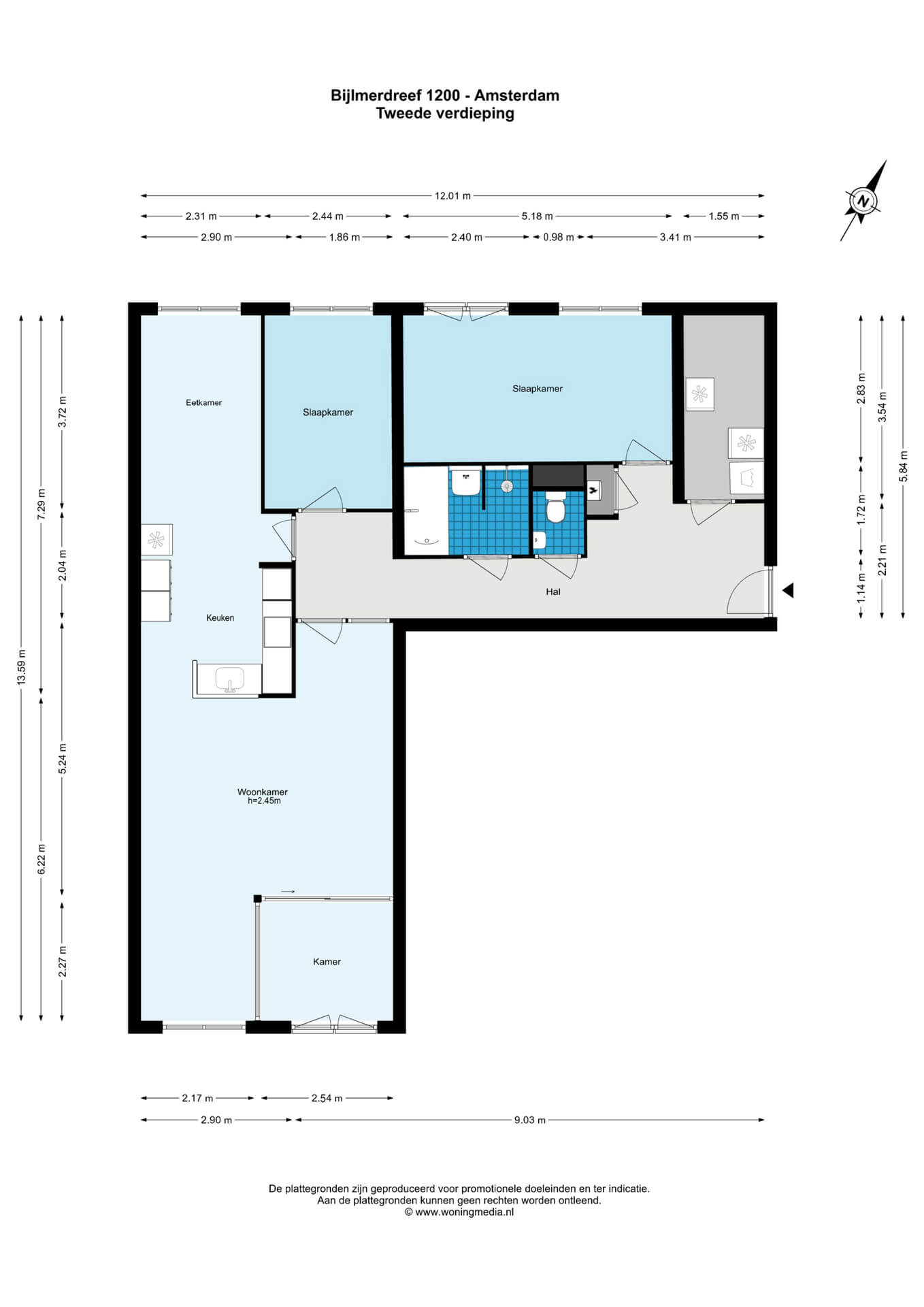
Indeling

Begane grond:
Gemeenschappelijke afgesloten entree met toegang tot de bergingen, lift en het trappenhuis.

Tweede verdieping:
Entree/hal met toegang tot een interne berging met wasmachineaansluiting en een separaat toilet met fonteintje. De badkamer is voorzien van een inloopdouche, ligbad en wastafel. De woning beschikt momenteel over twee ruime slaapkamers; een derde slaapkamer is eenvoudig weer te realiseren. De lichte en ruim opgezette woonkamer is praktisch ingedeeld met een zitgedeelte aan de voorzijde en een eetgedeelte aan de achterzijde. De halfopen keuken ligt centraal tussen beide en is uitgerust met diverse inbouwapparatuur.

Bijzonderheden

Woonoppervlakte ca. 107 m²
Energielabel A+
Verwarming via stadsverwarming
Lift aanwezig
Privéberging in de onderbouw
Metrostation op loopafstand
Erfpacht afgekocht tot 1 mei 2050
Bouwjaar: 2002
Servicekosten: ca. € 250,79 per maand
3e slaapkamer eenvoudig terug te brengen
Oplevering in overleg

Algemene Informatie

Adres
Bijlmerdreef 1200
Koopprijs
€ 395.000,- k.k.
Liggingen
In centrum, In woonwijk
Woonopp.
107 m2
Inhoud
320 m3

Comfort

Dak type
Plat dak
Isolatievormen
Volledig geïsoleerd

Indeling

Kamers
3
Slaapkamers
2

Wat is mijn huis waard?

Benieuwd naar de waarde van je huis? Ontvang binnen 24 uur gratis een indicatie van de waarde.

Vraag direct aan

Plan een bezichtiging voor dit huis