Verkocht o.v.
€ 250.000,- k.k.

Dolingadreef 213, Amsterdam

50 m2 - 1 slaapkamer - bouwjaar 1984

Licht tweekamerappartement op de bovenste verdieping met vrij uitzicht

Dit lichte tweekamerappartement van circa 50 m² ligt op de bovenste verdieping van een goed onderhouden complex in de populaire wijk Venserpolder. De woning biedt een mooi uitzicht op de groene binnentuin en de Johan Cruijff Arena.

Het complex bevindt zich op een centrale locatie met diverse voorzieningen in de directe omgeving. Op slechts acht minuten fietsen liggen AFAS Live, de Arena en Pathé, waar regelmatig evenementen plaatsvinden. Ook winkelcentrum De Amsterdamse Poort met een breed aanbod aan winkels en horecagelegenheden is eenvoudig bereikbaar.

De woning heeft een gunstige ligging ten opzichte van het openbaar vervoer en de belangrijkste uitvalswegen. Station Duivendrecht met metro- en treinverbindingen ligt op slechts twee minuten fietsen en is ook lopend bereikbaar. Metrohalte Venserpolder ligt op vier minuten afstand en biedt samen met het station een snelle verbinding naar het centrum van Amsterdam. Met de auto zijn de snelwegen A1, A2, A9 en A10 binnen enkele minuten te bereiken. Voor de deur is parkeergelegenheid aanwezig.

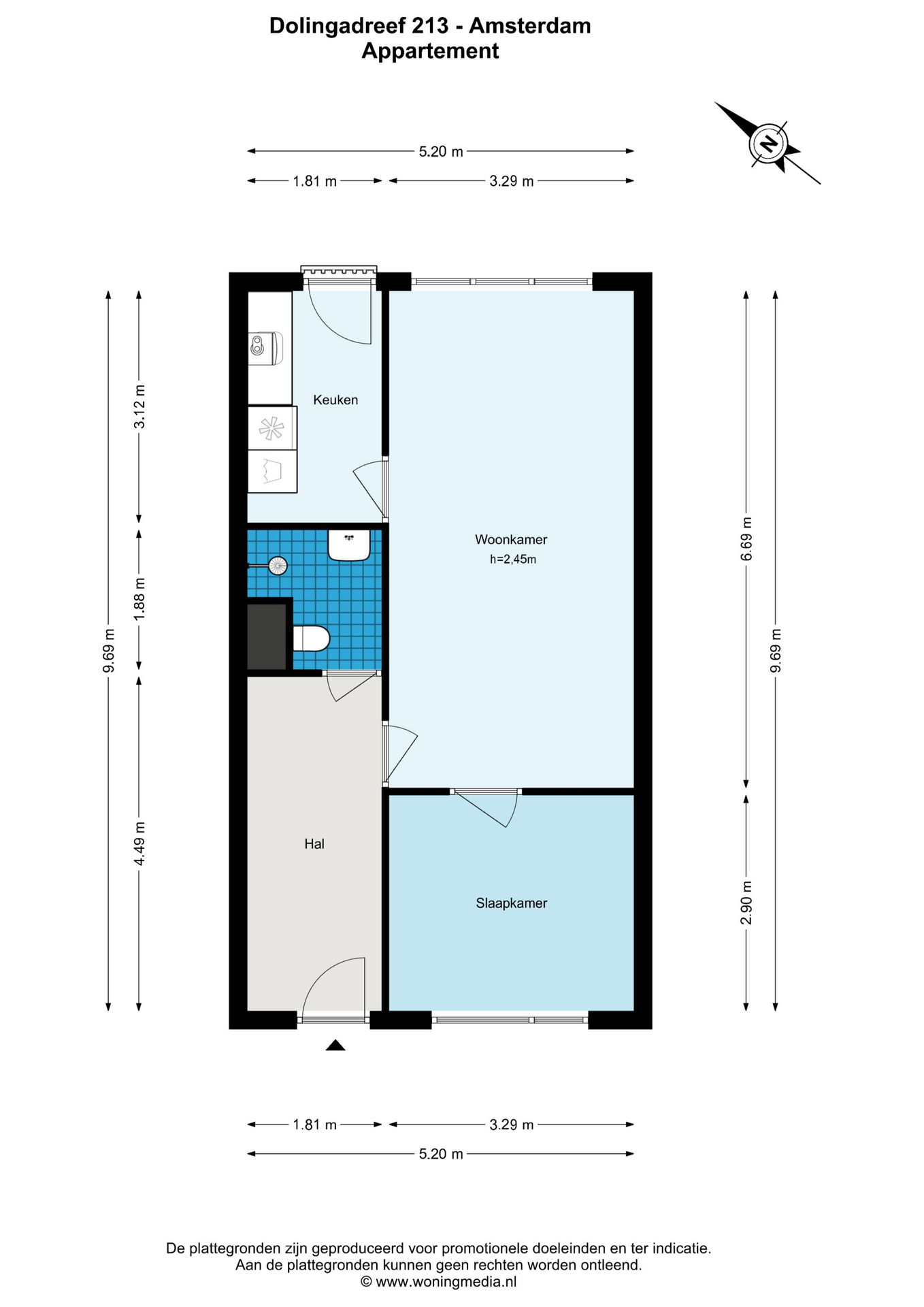
Via de afgesloten entree en het gemeenschappelijke trappenhuis bereikt u de woning op de vierde en tevens bovenste verdieping. De hal geeft toegang tot alle vertrekken.

Aan de voorzijde bevindt zich een ruime, lichte slaapkamer. De woonkamer aan de achterzijde heeft grote raampartijen en veel natuurlijke lichtinval, met een vrij uitzicht over de groene binnentuin. Aangrenzend ligt de keuken en toegang tot een Frans balkon. De badkamer is voorzien van een douche, wastafelmeubel en toilet.

In de onderbouw van het complex is een gedeelde fietsenberging aanwezig.

Bijzonderheden:

Woonoppervlakte circa 50 m²
Gelegen op de bovenste verdieping (geen bovenburen)
Energielabel C
Gemeenschappelijk dakterras aanwezig op de 4de verdieping
Gezonde en actieve VvE, servicekosten ca. € 156,83 per maand
Gemeenschappelijke fietsenberging op de begane grond (1/22 aandeel)
Erfpacht EEUWIGDUREND afgekocht!
Niet zelf bewoond clausule, ouderdom/asbest clausule van toepassing.
Oplevering in overleg

ENGLISH

Bright One-Bedroom Apartment on the Top Floor with Unobstructed Views

This bright one-bedroom apartment of approximately 50 m² is located on the top floor of a well-maintained complex in the popular Venserpolder district. The property offers a beautiful view over the green courtyard garden and the Johan Cruijff Arena.

The complex enjoys a central location with a wide range of amenities nearby. Within just eight minutes by bike, you can reach AFAS Live, the Arena, and Pathé cinema, all venues hosting regular events. The Amsterdamse Poort shopping center, offering numerous shops and restaurants, is also easily accessible.

The apartment is ideally situated for public transport and major roads. Duivendrecht Station, with both metro and train connections, is only a two-minute bike ride away and also within walking distance. Venserpolder metro station is four minutes away and, together with Duivendrecht, provides quick access to central Amsterdam. By car, the A1, A2, A9, and A10 motorways are reachable within minutes. Parking is available in front of the building.

Through the secured main entrance and communal staircase, you reach the apartment on the fourth and top floor. The hallway provides access to all rooms.

At the front is a spacious and bright bedroom. The living room at the rear features large windows, allowing plenty of natural light, and offers an open view over the green courtyard. Adjacent to the living area is the kitchen with access to a French balcony. The bathroom includes a shower, washbasin cabinet, and toilet.

A shared bicycle storage room is located in the basement of the complex.

Key features:

Living area approx. 50 m²
Located on the top floor (no upstairs neighbors)
Energy label C
Communal rooftop terrace on the 4th floor
Healthy and active homeowners’ association (VvE); monthly contribution approx. €156.83
Shared bicycle storage on the ground floor (1/22 ownership share)
Leasehold perpetually redeemed (no ground rent payable)
Non-owner-occupied clause and age/asbestos clause apply
Handover in consultation

Algemene Informatie

Adres
Dolingadreef 213
Koopprijs
€ 250.000,- k.k.
Liggingen
In woonwijk
Woonopp.
50 m2
Inhoud
153 m3

Comfort

Dak type
Plat dak
Isolatievormen
Dubbelglas

Indeling

Kamers
2
Slaapkamers
1

Wat is mijn huis waard?

Benieuwd naar de waarde van je huis? Ontvang binnen 24 uur gratis een indicatie van de waarde.

Vraag direct aan

Plan een bezichtiging voor dit huis