Verkocht o.v.
€ 600.000,- k.k.

Rhijnestein 102, Landsmeer

125 m2 - 4 slaapkamers - bouwjaar 1971

Ruime en lichte HOEK-eengezinswoning met vier slaapkamers, berging én zonnige tuin op het zuiden

Ben je op zoek naar een ruime gezinswoning met veel licht, een gunstige ligging én een zonnige tuin? Dan is deze fijne hoekwoning in Landsmeer precies wat je zoekt! De woning beschikt over vier slaapkamers, een moderne keuken, een mooie tuin op het zuiden en is gelegen in een kindvriendelijke wijk op loopafstand van winkels, scholen en het park. Daarbij fiets je in korte tijd naar Amsterdam!

Ligging

De woning is ideaal gelegen: in een rustige, kindvriendelijke buurt met veel autovrije hofjes en alle voorzieningen binnen handbereik. Landsmeer biedt het comfort van een dorp, maar ligt op korte afstand van de stad. Met de fiets ben je in 15 minuten bij de NDSM-werf en in 25 minuten bij het Eye Filmmuseum. Met de auto zit je binnen enkele minuten op de Ring A10 (afslag S117) en de bushalte is op slechts 3 minuten lopen. De halte van de Noord/Zuidlijn ligt op ongeveer 15 minuten fietsen.

In de directe omgeving vind je diverse basisscholen, supermarkten, een Hema, sushibars, afhaalmogelijkheden, een traiteur, een kinderkapper en zelfs een indoor skischool. Ook natuurgebied Het Twiske ligt op steenworp afstand: ideaal voor wandelen, fietsen, zwemmen of spelen met de kinderen.

Indeling

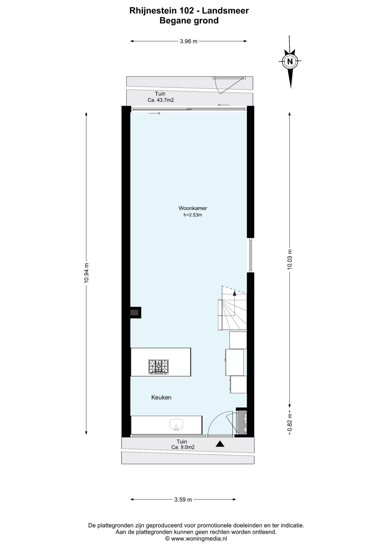
Begane grond
Ruime en lichte woonkamer met een moderne open keuken (2020) aan de voorzijde, voorzien van een kookeiland. Aan de achterzijde toegang tot de fraai aangelegde tuin op het zuiden met achterom en stenen berging.

Eerste verdieping
Overloop, twee ruime slaapkamers, separaat toilet en een luxe badkamer met inloopdouche, ligbad en dubbele wastafel.

Tweede verdieping
Overloop, twee slaapkamers en aansluiting voor de wasmachine en cv-installatie.

Bijzonderheden

* Woonoppervlakte: 125 m² (meetrapport aanwezig)
* Perceeloppervlakte: 102 m²
* Gelegen op eigen grond
* Energielabel B
* Voorzien van 7 zonnepanelen
* Aluminium en kunststof kozijnen met dubbel glas en HR++ glas
* Vloer geïsoleerd met Quadfoam 500 (15 cm) – 2022
* Voorgevel geïsoleerd met steenwol
* Zijgevel na-geïsoleerd met EPS-bolletjes
* Kindvriendelijke wijk met veel autovrije hofjes
* Vrijstaande stenen berging

Kortom: een comfortabele, energiezuinige en goed onderhouden gezinswoning op een rustige maar centrale locatie, met de stad én natuur binnen handbereik. Maak snel een afspraak voor een bezichtiging!

Algemene Informatie

Adres
Rhijnestein 102
Koopprijs
€ 600.000,- k.k.
Liggingen
In woonwijk
Woonopp.
125 m2
Inhoud
396 m3
Perceel oppervlakte
108 m2

Comfort

Dak type
Zadeldak
Isolatievormen
Muurisolatie, Vloerisolatie, Dubbelglas, HR glas

Stedenbouwkundige info

Perceel oppervlakte
108 m2

Indeling

Kamers
5
Slaapkamers
4

Wat is mijn huis waard?

Benieuwd naar de waarde van je huis? Ontvang binnen 24 uur gratis een indicatie van de waarde.

Vraag direct aan

Plan een bezichtiging voor dit huis