ONDER_BOD
€ 300.000,- k.k.

Alfred Döblinstraat 12, Amsterdam

55 m2 - 1 slaapkamer - bouwjaar 1985

Heerlijk twee- kamerappartement gelegen op de eerste verdieping gelegen in Venserpolder.

De ligging van het appartement is centraal ten opzichte van diverse voorzieningen en faciliteiten. Zo bevindt zich in de nabije omgeving het Nelson Mandelapark, winkelcentrum Amsterdamse Poort voor uw dagelijkse boodschappen, Woonboulevard Villa Arena, bioscoop Pathé Arena, AFAS Live en de Ziggo Dome. Daarnaast liggen op gepaste afstand het groen- en recreatiegebied Ouderkerkerplas, diverse lage- en hoge scholen en het Academisch Medisch Centrum (AMC). De bereikbaarheid is uitstekend met in de nabije omgeving diverse uitvalswegen (A1, A2, A9 en A10). Voor wat betreft het openbaar vervoer liggen metro- en treinstation Bijlmer ArenA, Strandvliet en Duivendrecht in de directe omgeving. Met de trein ben je binnen ca. 15 minuten op Schiphol, Utrecht of Amsterdam Centraal.

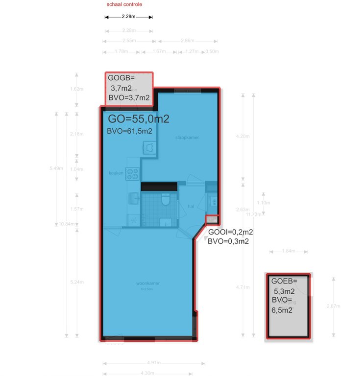
Indeling
Begane grond:
Centrale entree, brievenbussen en trappenhuis.

Eerste verdieping:
hal, meterkast en toegang tot alle vertrekken. De slaapkamer met een kleine inbouwkast is gelegen aan de achterzijde van het appartement en geeft toegang tot het balkon gelegen op het zuidoosten. De ruime woonkamer ligt aan de voorzijde en heeft een Frans balkon. De ruime woonkeuken geeft tevens toegang tot het balkon. De hoogglans witte keuken is voorzien van diverse inbouwapparatuur zoals een koel/vriescombinatie, oven/magnetroncombinatie, gaskookplaat en afzuigkap. Vanaf het balkon is er een prachtig uitzicht op de binnentuinen. In het midden van het appartement bevind zich de nette badkamer voorzien van een douchehoek, hangend closet en wastafelmeubel.

Erfpacht:
Canon is afgekocht t/m 15 juni 2035, volgens rekentool gemeente Amsterdam bedraagt afkoop eenmalig € 6.014,- of een jaarcanon van € 180,36 excl. jaarlijkse indexatie (prijsberekening is gemaakt op rekenfactoren van 2025)

Bijzonderheden:

– beschikking over een individuele berging op de begane grond (gebruiksrecht).
– de erfpachtcanon is afgekocht tot en met 15 juni 2035
– de servicekosten bedragen € 166,36 per maand
– warm water en verwarming middels CV-ketel (lease)
– vaste notaris BarentsKrans te Amsterdam
– oplevering in overleg, kan snel

ENGLISH

Lovely one-bedroom apartment located on the first floor in Venserpolder.

The apartment enjoys a central location with various amenities and facilities nearby. In the immediate surroundings, you’ll find Nelson Mandelapark, the Amsterdamse Poort shopping center for daily groceries, the Villa Arena home furnishing boulevard, Pathé Arena cinema, AFAS Live, and the Ziggo Dome. Also within easy reach are the green and recreational area Ouderkerkerplas, several primary and secondary schools, and the Academic Medical Center (AMC).

Accessibility is excellent, with major highways (A1, A2, A9, and A10) close by. Public transport connections are also very convenient — metro and train stations Bijlmer ArenA, Strandvliet, and Duivendrecht are all within walking distance. By train, you can reach Schiphol Airport, Utrecht, or Amsterdam Central Station in approximately 15 minutes.

Layout
Ground floor:
Central entrance with mailboxes and staircase.

First floor:
Hallway with meter cupboard and access to all rooms. The bedroom, located at the rear of the apartment, includes a small built-in closet and provides access to the southeast-facing balcony. The spacious living room is situated at the front and features a French balcony. The large kitchen also opens onto the main balcony. The sleek white high-gloss kitchen is equipped with various built-in appliances, including a fridge-freezer combination, oven/microwave, gas cooktop, and extractor hood. From the balcony, there is a lovely view over the communal gardens. In the center of the apartment, you’ll find a well-maintained bathroom fitted with a shower, wall-mounted toilet, and washbasin cabinet.

Ground lease:
The ground rent has been paid off until June 15, 2035. According to the Municipality of Amsterdam’s calculation tool, full redemption would amount to a one-time payment of €6,014, or an annual ground rent of €180.36, excluding yearly indexation (calculation based on 2025 rate factors)

Key features

Private storage room on the ground floor (usage right)
Ground lease paid off until June 15, 2035
Service costs approximately €165 per month
Heating and hot water via central heating boiler (leased)
Fixed notary: BarentsKrans in Amsterdam
Transfer in consultation, quick delivery possible

Algemene Informatie

Adres
Alfred Döblinstraat 12
Koopprijs
€ 300.000,- k.k.
Liggingen
Aan rustige weg, In woonwijk
Woonopp.
55 m2
Inhoud
175 m3

Comfort

Dak type
Plat dak
Isolatievormen
Dubbelglas

Indeling

Kamers
2
Slaapkamers
1

Wat is mijn huis waard?

Benieuwd naar de waarde van je huis? Ontvang binnen 24 uur gratis een indicatie van de waarde.

Vraag direct aan

Plan een bezichtiging voor dit huis