VERKOCHT
€ 265.000,- k.k.

Reigersbos 148, Amsterdam

57 m2 - 2 slaapkamers - bouwjaar 1984

Ruim appartement met zonnig dakterras in Reigersbos

In het levendige en groene Reigersbos bevindt zich dit prettige appartement met een dakterras op het zuidwesten. De buurt staat bekend om haar rustige woonstraten, goede voorzieningen en uitstekende bereikbaarheid. Op loopafstand vind je het winkelcentrum Reigersbos, diverse supermarkten, gezellige eetgelegenheden en het metrostation, waarmee je binnen korte tijd in het centrum van Amsterdam bent. Ook zijn er in de omgeving meerdere parken en recreatiegebieden, zoals de Gaasperplas en het Bijlmerweidepark, ideaal voor ontspanning en sport.

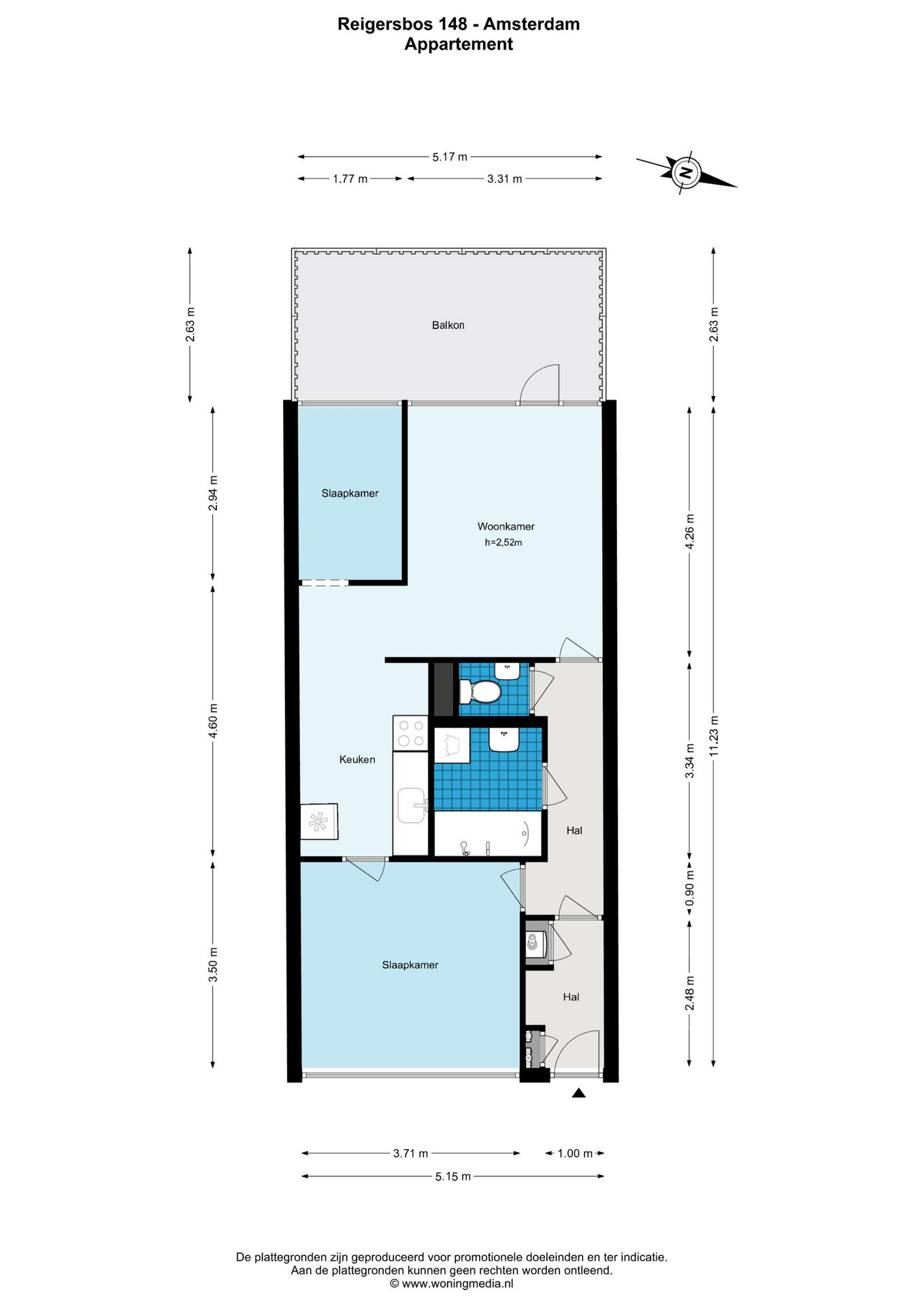
Indeling
Bij binnenkomst stap je in een ruime hal die toegang biedt tot alle vertrekken. Links bevindt zich direct de slaapkamer, en iets verderop in de hal vind je links de badkamer en een separaat toilet. De woonkamer is licht en ruim, met aan de linkerkant nog een tweede slaapkamer. Vanuit de woonkamer stap je zo het dakterras op, waar je heerlijk kunt genieten van de middag- en avondzon. Aangrenzend aan de woonkamer ligt de gesloten keuken, praktisch ingedeeld en voorzien van de nodige aansluitingen.

Erfpacht
De erfpacht is afgekocht t/m 15 juni 2032; volgens PIP (persoonlijk informatie pakket) bedraagt afkoop eenmalig € 13.023,- of een jaarcanon van € 363,52 excl. jaarlijkse indexatie

Kenmerken
Energielabel B
Berging op de begane grond
Dakterras op het zuidwesten
Servicekosten 229 euro per maand
Oplevering in overleg

ENGLISH

Spacious apartment with sunny roof terrace in Reigersbos

This pleasant apartment with a southwest-facing roof terrace is located in the lively and green Reigersbos neighborhood. The neighborhood is known for its quiet residential streets, excellent amenities, and excellent accessibility. Within walking distance, you’ll find the Reigersbos shopping center, various supermarkets, cozy restaurants, and the metro station, which quickly connects you to the center of Amsterdam. There are also several parks and recreational areas in the area, such as the Gaasperplas lake and Bijlmerweidepark, ideal for relaxation and exercise.

Layout
Upon entering, you step into a spacious hallway that provides access to all rooms. The bedroom is immediately to the left, and a little further down the hall, you’ll find the bathroom and a separate toilet on the left. The living room is bright and spacious, with a second bedroom on the left. From the living room, you can step directly onto the roof terrace, where you can enjoy the afternoon and evening sun. Adjacent to the living room is the closed kitchen, which has a practical layout and is equipped with all necessary connections. Ground Lease
The ground lease has been bought off until June 15, 2032; according to the PIP (personal information package), the buyout amounts to a one-time fee of €13,023 or an annual rent of €363.52 excluding annual indexation.

Features
Energy label B
Ground floor storage
Southwest-facing roof terrace
Monthly service charges: €229
Delivery by arrangement

Algemene Informatie

Adres
Reigersbos 148
Koopprijs
€ 265.000,- k.k.
Liggingen
Aan rustige weg, In centrum, In woonwijk
Woonopp.
57 m2
Inhoud
177 m3

Comfort

Dak type
Plat dak
Isolatievormen
Dubbelglas

Indeling

Kamers
3
Slaapkamers
2

Wat is mijn huis waard?

Benieuwd naar de waarde van je huis? Ontvang binnen 24 uur gratis een indicatie van de waarde.

Vraag direct aan

Plan een bezichtiging voor dit huis