Te koop
€ 750.000,- k.k.

Abraham Kuyperplein 8, Amsterdam

130 m2 - 4 slaapkamers - bouwjaar 2005

Aan het groene Abraham Kuyperplein in Geuzenveld-West ligt deze ruime en goed onderhouden tussenwoning van maar liefst ca. 130 m². De woning beschikt over 5 slaapkamers, een badkamer, een royale en lichte woonkamer en een zonnige achtertuin op het westen met achterom. Dankzij de praktische indeling en het energielabel A is dit een ideale gezinswoning.

Omgeving
De woning is gelegen in de kindvriendelijke en groene wijk Geuzenveld-West. In de directe omgeving bevinden zich diverse scholen, kinderopvang, winkels en supermarkten. Op loopafstand ligt het Lambertus Zijlplein met een gevarieerd aanbod aan buurtwinkels en bekende ketens zoals Albert Heijn en Kruidvat.
Voor ontspanning en recreatie zijn er meerdere parken en sportvoorzieningen op loop- en fietsafstand.
De bereikbaarheid is uitstekend: binnen één autominuut bereikt u de N220 richting Halfweg en Haarlem of de Ring A10 West. Daarnaast bevindt zich op slechts één minuut loopafstand een bushalte met goede verbindingen richting het centrum en Station Sloterdijk.

Indeling
Begane grond
Via het Abraham Kuyperplein bereikt u de entree van de woning. In de hal bevinden zich het toilet, de meterkast en de trap naar de eerste verdieping.
De hal geeft toegang tot de ruime en lichte woonkamer, die aan de achterzijde is gesitueerd en direct grenst aan de tuin.
De keuken bevindt zich aan de voorzijde van de woning en is voorzien van diverse inbouwapparatuur.
De zonnige achtertuin is gelegen op het westen en beschikt over een houten berging en een achterom.

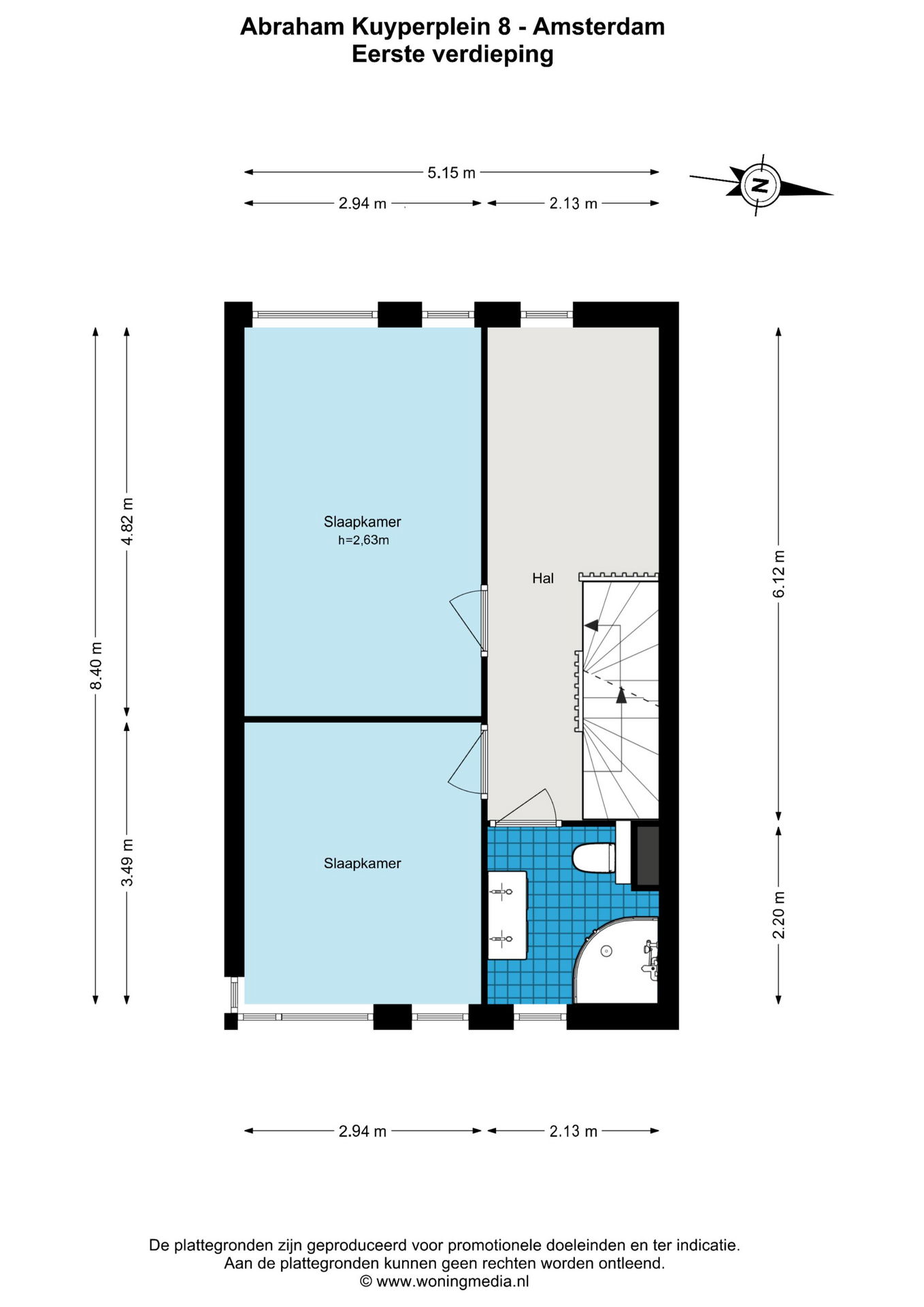
Eerste verdieping
Vanaf de overloop heeft u toegang tot twee slaapkamers en de badkamer. De badkamer is uitgerust met een ruime douche, toilet en een dubbele wastafel.

Tweede verdieping
De overloop biedt toegang tot 2 slaapkamers.

Bijzonderheden
Woonoppervlak 130m² (NEN 2580);
Erfpacht afgekocht tot en met september 2055;
4 slaapkamers;
Begane grond voorzien van vloerverwarming;
Energiezuinige woning met energielabel A;
Oplevering in overleg.

Algemene Informatie

Adres
Abraham Kuyperplein 8
Koopprijs
€ 750.000,- k.k.
Liggingen
In woonwijk, Vrij uitzicht
Woonopp.
130 m2
Inhoud
457 m3
Perceel oppervlakte
106 m2

Comfort

Dak type
Plat dak
Isolatievormen
Volledig geïsoleerd

Stedenbouwkundige info

Perceel oppervlakte
106 m2

Indeling

Kamers
5
Slaapkamers
4

Wat is mijn huis waard?

Benieuwd naar de waarde van je huis? Ontvang binnen 24 uur gratis een indicatie van de waarde.

Vraag direct aan

Plan een bezichtiging voor dit huis