ONDER_BOD
€ 495.000,- k.k.

Geerdinkhof 619, Amsterdam

89 m2 - 3 slaapkamers - bouwjaar 1987

Deze woning is gelegen in een prachtige, parkachtige omgeving grenzend aan de Bijlmerweide. Met fraaie wandelpaden, waterpartijen, volop rust en de gezellige kinderboerderij is dit voor jong en oud een heerlijke plek om te wonen én te recreëren.

De woning bevindt zich in een zeer kindvriendelijke buurt, nabij diverse basisscholen en middelbare scholen, en wordt omringd door speeltuintjes en autovrije hofjes. Voor de dagelijkse boodschappen ligt het winkelcentrum Ganzenpoort op loopafstand. De bereikbaarheid is uitstekend: er is voldoende parkeergelegenheid en het nabijgelegen metrostation Metrostation Ganzenhoef biedt een snelle verbinding naar de binnenstad (circa 15 minuten reistijd) en onder andere Schiphol.

Indeling
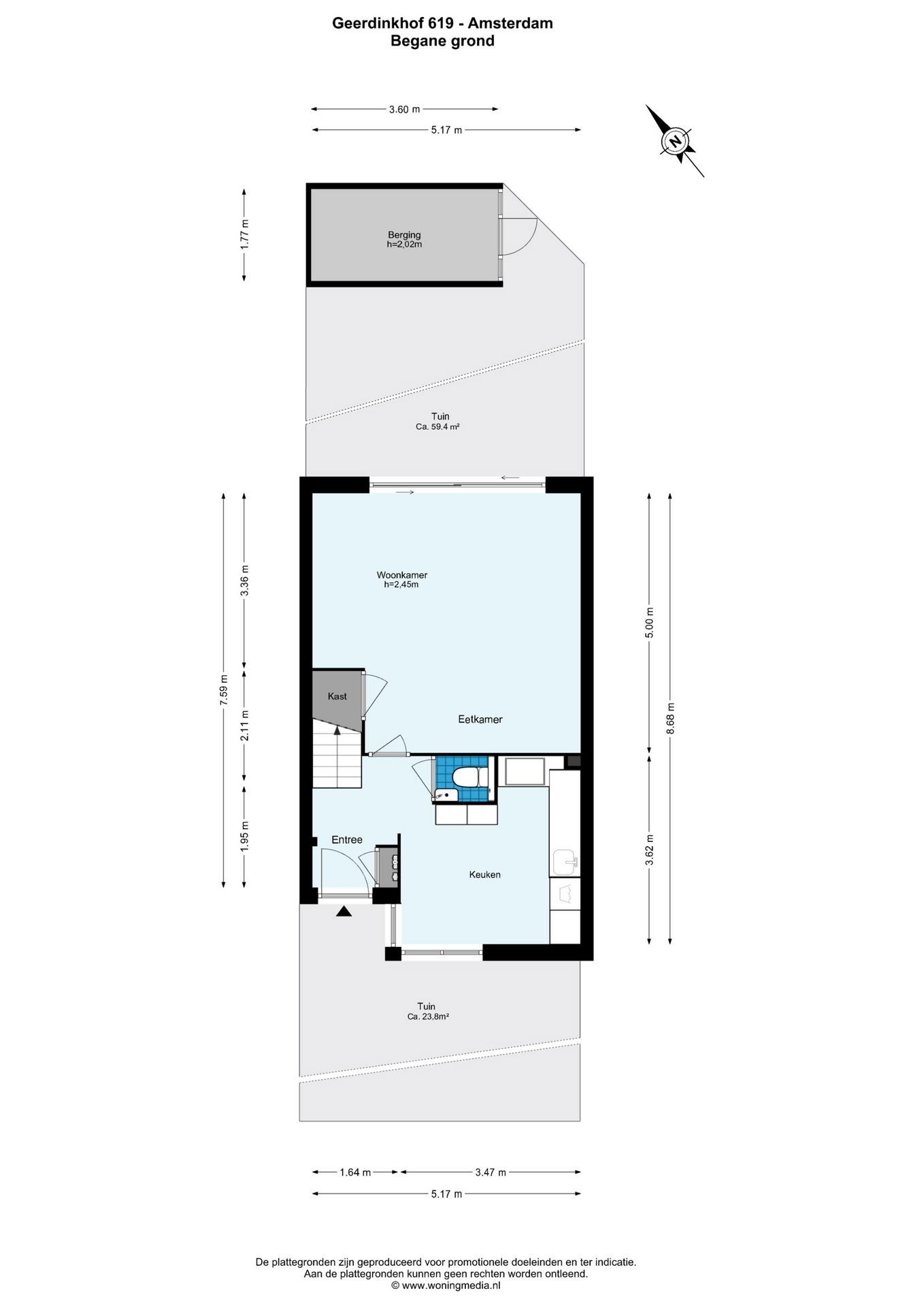
Begane grond:
Entree met ruime hal, toilet met fonteintje en de trap naar de eerste verdieping. Vanuit de hal bereik je de royale keuken, die is voorzien van diverse inbouwapparatuur, waaronder een koffiezetapparaat, koel-vriescombinatie, magnetron, vaatwasser, 5-pits kookplaat en aansluiting voor de wasmachine. Tevens vanuit de hal is de lichte woonkamer bereikbaar, voorzien van een plavuizen vloer. De gehele begane grond is uitgerust met comfortabele vloerverwarming. Via de schuifpui in de woonkamer heb je toegang tot de ruime achtertuin, gelegen op het noordoosten. De tuin biedt volop mogelijkheden om te genieten van de ochtend- en middagzon. Achterin de tuin bevindt zich een stenen berging van circa 6 m², ideaal voor fietsen en extra opslag.

Eerste verdieping:
Overloop met toegang tot drie ruime slaapkamers. De moderne badkamer is voorzien van een zwevend toilet, wastafel en een royaal ligbad met douchegelegenheid.

Bijzonderheden
Perceeloppervlakte 143 m²
Achtertuin gelegen op het noordoosten
10 zonnepanelen aanwezig
Eigen oprit met 2 parkeerplaatsen
Rolluiken bij de slaapkamerramen en woonkamer tuinzijde
Zonnescherm aan de voorzijde van de woning
Erfpacht afgekocht tot 15 februari 2036 daarna eeuwigdurend vastgezet op basis van canon betaling.
Energielabel A+
Uitbreidingsmogelijkheden uitbouw/opbouw
Oplevering in overleg

ENGLISH:

This property is situated in a beautiful, park-like setting bordering the Bijlmerweide nature area. With scenic walking paths, water features, plenty of tranquility, and a charming petting zoo, it is a wonderful place for both young and old to live and relax.

The home is located in a very family-friendly neighborhood, close to several primary and secondary schools, and surrounded by playgrounds and traffic-free courtyards. For daily groceries, the Ganzenpoort shopping center is within walking distance. Accessibility is excellent: there is ample parking available and the nearby Ganzenhoef metro station provides a quick connection to the city center (approximately 15 minutes) and destinations such as Schiphol Airport.
Layout

Ground floor:
Entrance with a spacious hallway, toilet with washbasin, and staircase leading to the first floor. From the hallway you can access the generous kitchen, which is equipped with various built-in appliances, including a coffee machine, fridge-freezer combination, microwave, dishwasher, 5-burner cooktop, and a connection for a washing machine.
The bright living room is also accessible from the hallway and features tiled flooring. The entire ground floor is equipped with comfortable underfloor heating. Through the sliding doors in the living room you have access to the spacious backyard, which is northeast-facing. The garden offers plenty of opportunities to enjoy the morning and early afternoon sun. At the rear of the garden there is a stone storage shed of approximately 6 m², ideal for bicycles and additional storage.

First floor:
Landing with access to three generously sized bedrooms. The modern bathroom is fitted with a wall-mounted toilet, washbasin, and a spacious bathtub with shower.

Key features
Plot size: 143 m²
Backyard facing northeast
10 solar panels installed
Private driveway with space for 2 cars
Roller shutters on the bedroom windows and on the garden side of the living room
Sunshade at the front of the house
Leasehold prepaid until 15 February 2036, after which it is perpetually fixed based on an annual ground rent payment
Energy label A+
Possibilities for extension or adding an extra floor
Completion date in consultation

Algemene Informatie

Adres
Geerdinkhof 619
Koopprijs
€ 495.000,- k.k.
Liggingen
Aan park, Aan rustige weg, In woonwijk
Woonopp.
89 m2
Inhoud
298 m3
Perceel oppervlakte
143 m2

Comfort

Dak type
Plat dak
Isolatievormen
Dubbelglas

Stedenbouwkundige info

Perceel oppervlakte
143 m2

Indeling

Kamers
4
Slaapkamers
3

Wat is mijn huis waard?

Benieuwd naar de waarde van je huis? Ontvang binnen 24 uur gratis een indicatie van de waarde.

Vraag direct aan

Plan een bezichtiging voor dit huis