Te koop
€ 460.000,- k.k.

Kerstomaatplantsoen 20, Amsterdam

96 m2 - 3 slaapkamers - bouwjaar 2007

Goed onderhouden woning met zonnige tuin van 56m², drie slaapkamers, vloerverwarming en mogelijkheid tot opbouw!
Erfpacht voor EEUWIGDUREND afgekocht vanaf 01 juli 2056.

Omgeving
Deze moderne woning uit 2007 bevindt zich in de populaire wijk Nieuw Kempering, een rustige, groene en kindvriendelijke omgeving nabij het fraaie natuurgebied rond de Gaasperplas. Op ongeveer 500 meter afstand ligt winkelcentrum De Kameleon, waar u terechtkunt voor diverse winkels en dagelijkse voorzieningen. Op korte afstand bevindt zich bovendien de Amsterdamse Poort. De wijk ligt in de groene en levendige K-buurt, grenzend aan de Johan Cruijff Arena. Dankzij de autoluwe opzet en de aanwezigheid van meerdere speelplekken is dit een bijzonder geschikte woonomgeving voor gezinnen. De bereikbaarheid is uitstekend. Het metrostation ligt op slechts vijf minuten loopafstand, aan de overzijde van de Karspeldreef. Met de auto bereikt u snel de uitvalswegen A1, A2, A9 en A10. Door de ondertunneling van de Gaasperdammerweg en de aanleg van het Brasapark zijn het Gaasperpark en de Gaasperplas bovendien gemakkelijk bereikbaar voor een ontspannen wandeling of fietstocht.
Indeling

Begane grond
Via de entree komt u in de hal, die toegang biedt tot de meterkast, een separaat toilet met fonteintje en de woonkamer. De lichte woonkamer staat in directe verbinding met de zonnige achtertuin op het zuidoosten. Deze tuin heeft een oppervlakte van circa 56 m² en is voorzien van een houten berging, een praktische achterom én een buitenkraan. Aan de voorzijde van de woning bevindt zich de moderne open keuken, welke slechts één jaar oud is en is uitgerust met diverse inbouwapparatuur en voldoende werk- en bergruimte. Ook aan de voorzijde van de woning is een buitenkraan aanwezig. De gehele begane grond is voorzien van comfortabele vloerverwarming.

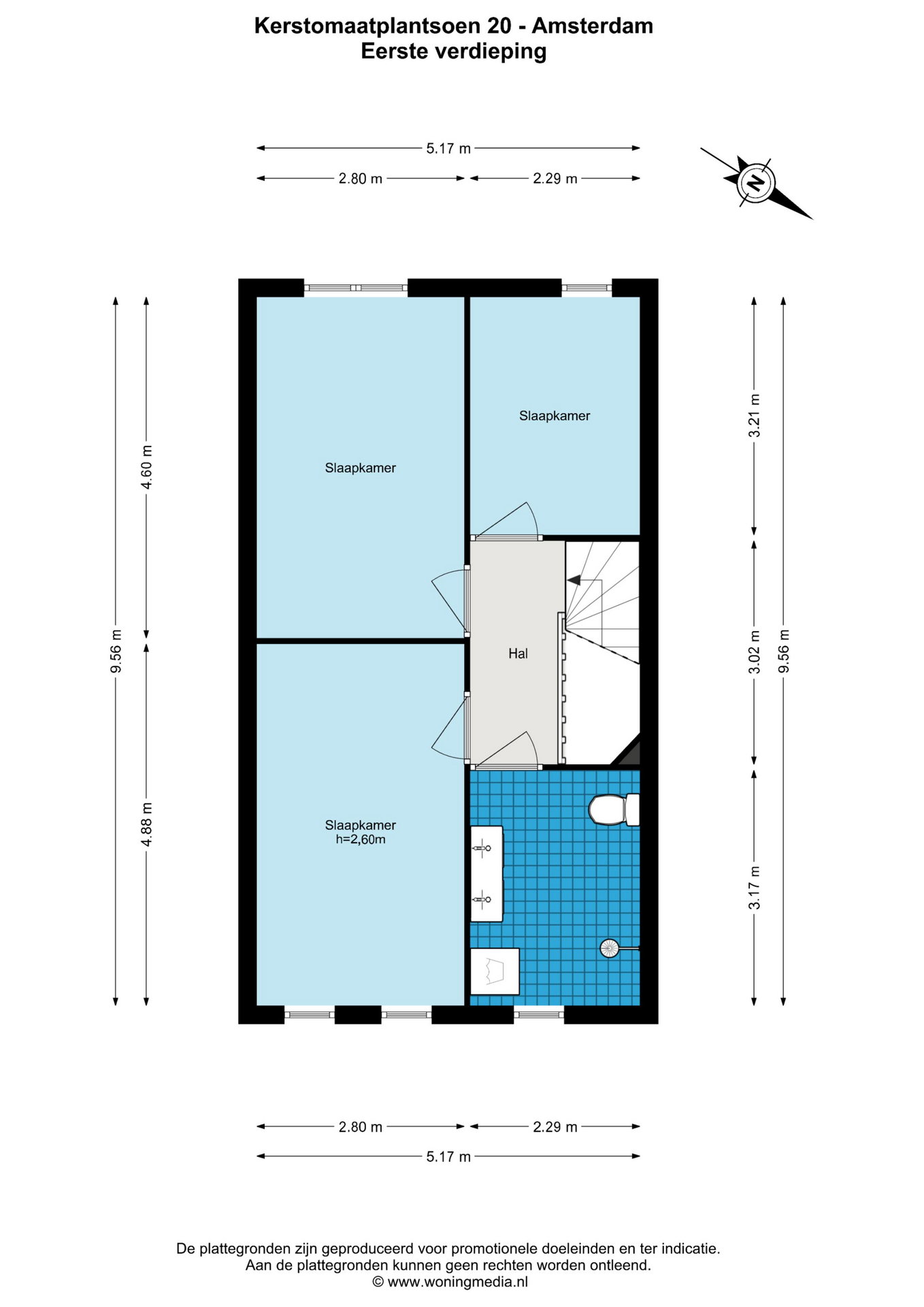
Eerste verdieping
Overloop met trapopgang. Op deze verdieping bevinden zich drie slaapkamers: twee aan de achterzijde en één aan de voorzijde. De badkamer is voorzien van een douche, wastafel en een toilet, en beschikt eveneens over vloerverwarming. Ook de eerste verdieping is volledig voorzien van vloerverwarming, wat zorgt voor extra comfort in alle ruimtes.

Bijzonderheden

Achtertuin van circa 56 m² gelegen op het zuidoosten
Vloerverwarming op zowel de begane grond als eerste verdieping (inclusief badkamer)
Keuken vernieuwd (circa 1 jaar oud)
Verwarming en warm water via stadsverwarming (gasloos wonen)
Energielabel A
Bouwjaar 2007
Volledig geïsoleerd
Mogelijkheid tot opbouw
Tot 30 juni 2056 , jaarlijkse erfpacht van 2782,73 euro, jaarlijkse indexering, welke aftrekbaar is van uw belastingaangifte
Oplevering per direct mogelijk

Algemene Informatie

Adres
Kerstomaatplantsoen 20
Koopprijs
€ 460.000,- k.k.
Liggingen
Aan rustige weg, In woonwijk
Woonopp.
96 m2
Inhoud
331 m3
Perceel oppervlakte
116 m2

Comfort

Dak type
Plat dak
Isolatievormen
Volledig geïsoleerd

Stedenbouwkundige info

Perceel oppervlakte
116 m2

Indeling

Kamers
4
Slaapkamers
3

Wat is mijn huis waard?

Benieuwd naar de waarde van je huis? Ontvang binnen 24 uur gratis een indicatie van de waarde.

Vraag direct aan

Plan een bezichtiging voor dit huis