VERKOCHT
€ 550.000,- k.k.

Valutaboulevard 116, Amsterdam

105 m2 - 3 slaapkamers - bouwjaar 2003

Instapklare woning met energielabel A in de geliefde wijk De Aker

Bent u op zoek naar een ruime en energiezuinige woning waar u zó in kunt trekken? Dan is deze woning in woonwijk De Aker precies wat u zoekt. Met een woonoppervlakte van 105 m², energielabel A, een slaapkamer op de begane grond, én een zonnig dakterras biedt dit huis alles wat u nodig heeft voor comfortabel wonen.

Indeling
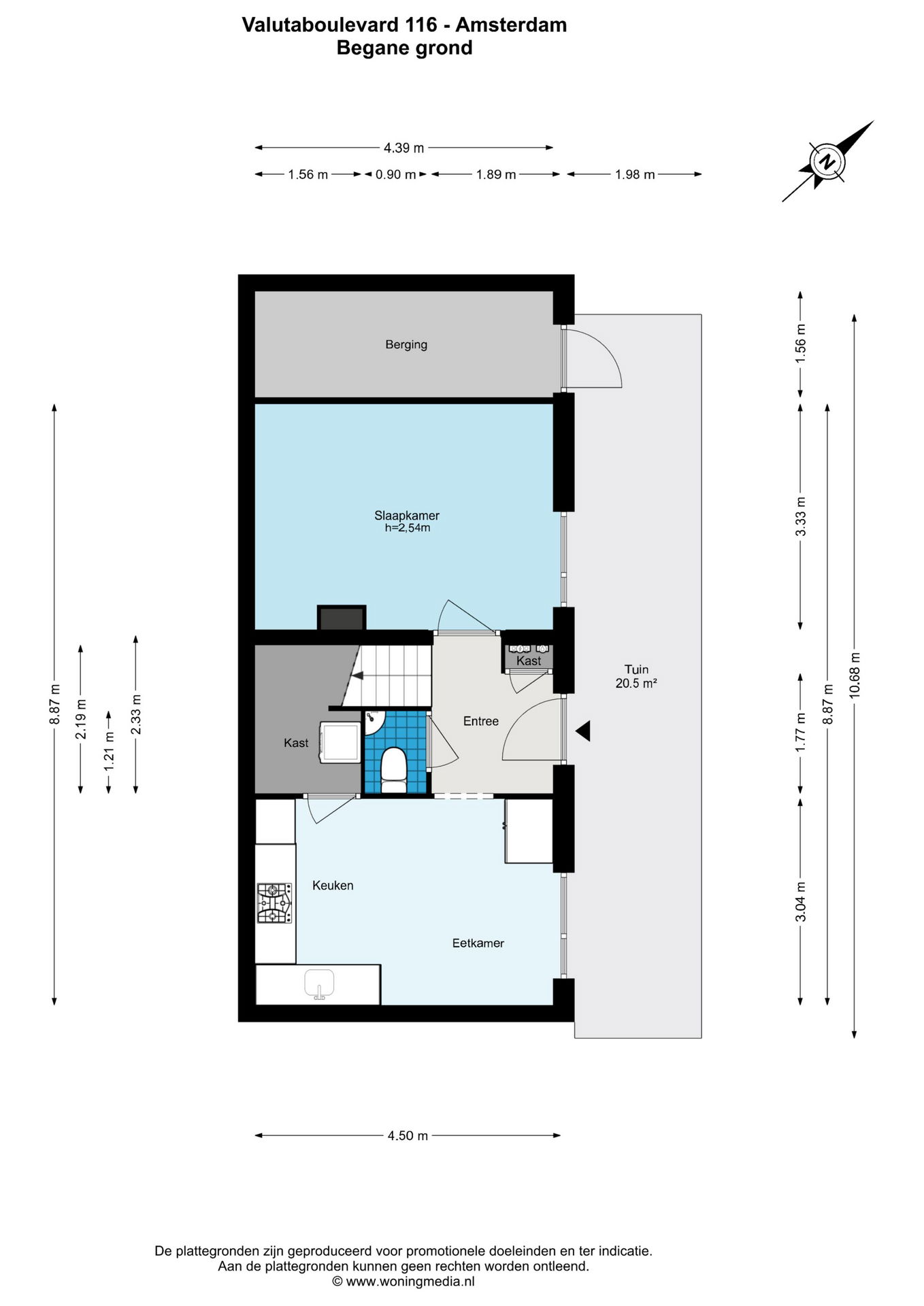
Begane grond
Entree met toegang tot een ruime slaapkamer, een eetkamer met open keuken en een royale berging.

Eerste verdieping
Hier bevindt zich een lichte en ruime woonkamer met vide, een tweede slaapkamer en een nette badkamer voorzien van douche, toilet en wastafel.

Tweede verdieping
Een derde slaapkamer met toegang tot het zonnige dakterras, waar u heerlijk kunt genieten van de buitenlucht.

Pluspunten van de woning
Eigen parkeerplaats
Energielabel A – duurzaam en energiezuinig wonen
Erfpacht afgekocht tot 2049, daarna vastgezet obv de gunstige voorwaarden.
Schilderwerk uitgevoerd in 2021
105 m² woonoppervlakte
Voorzien van dakterras
Praktische indeling met slaapkamer op de begane grond
Mogelijkheid tot het creëren van extra ruimte dmv de vide te benutten.

Ligging

De woning is gelegen in de rustige en kindvriendelijke wijk De Aker, met veel groenvoorzieningen, speeltuinen en waterpartijen. In de directe omgeving vindt u diverse winkels, scholen, sportfaciliteiten en openbaar vervoerverbindingen (tram en bus). Met de auto bereikt u binnen enkele minuten de Ring A10 en binnen 20 minuten fietst u naar het centrum van Amsterdam.
Kortom: een comfortabele, energiezuinige en instapklare woning op een fijne locatie!

Algemene Informatie

Adres
Valutaboulevard 116
Koopprijs
€ 550.000,- k.k.
Liggingen
In woonwijk, Vrij uitzicht
Woonopp.
105 m2
Inhoud
445 m3
Perceel oppervlakte
76 m2

Comfort

Dak type
Plat dak
Isolatievormen
Volledig geïsoleerd

Stedenbouwkundige info

Perceel oppervlakte
76 m2

Indeling

Kamers
5
Slaapkamers
3

Wat is mijn huis waard?

Benieuwd naar de waarde van je huis? Ontvang binnen 24 uur gratis een indicatie van de waarde.

Vraag direct aan

Plan een bezichtiging voor dit huis